Запчасти Komatsu WA100M-3 НАВЕС (PANTOGRAPH) (/) OPERATIORS ОБСТАНОВКА И СИСТЕМА УПРАВЛЕНИЯ

Схема запчастей Komatsu WA100M-3 - НАВЕС (PANTOGRAPH) (/) OPERATIORS ОБСТАНОВКА И СИСТЕМА УПРАВЛЕНИЯ
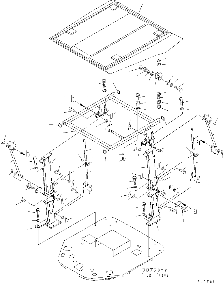
1
2
3
3
4
4
5
5
5
5
6
6
6
6
7
8
9
10
11
11
11
11
12
12
12
12
13
13
13
13
14
14
14
14
15
15
15
15
16
17
18
18
19
19
20
20
21
21
21
21
22
22
22
22
23
23
24
24
24
24
25
25
25
25
25
25
25
25
25
25
26
26
26
26
27
27
28
28
28
28
29
30
31
32
33
34
34
35
35
36
36
36
36
37
FIT
1:1
100%

Артикул

Название

Примечание

Количество

|$2

416-54-28100

ROOF ASS'Y

SN: 10001-UP

1шт.

1

416-54-28150

ROOF

SN: 10001-UP

1шт.

2

417-54-18280

BOLT

SN: 10001-UP

4шт.

3

417-54-18310

NUT

SN: 10001-UP

8шт.

4

417-54-18290

NUT

SN: 10001-UP

8шт.

5

417-54-18240

WASHER

SN: 10001-UP

16шт.

6

417-54-18270

CUSHION

SN: 10001-UP

16шт.

7

417-54-18260

BELT

SN: 10001-UP

4шт.

8

415-54-28321

POLE

SN: 10001-UP

1шт.

9

415-54-28341

POLE

SN: 10001-UP

1шт.

10

415-54-28642

POLE

SN: 10001-UP

1шт.

11

04205-11438

PIN

SN: 10001-UP

4шт.

12

01640-21426

WASHER

SN: 10001-UP

4шт.

13

04050-14028

PIN

SN: 10001-UP

4шт.

14

01010-81430

BOLT

SN: 10001-UP

6шт.

15

01643-31445

WASHER

SN: 10001-UP

6шт.

16

415-54-28331

POLE

SN: 10001-UP

1шт.

17

415-54-28551

POLE

SN: 10001-UP

1шт.

18

415-54-28420

PLATE

SN: 10001-UP

2шт.

19

01435-01020

BOLT

SN: 10001-UP

4шт.

20

415-54-28410

PIPE

SN: 10001-UP

2шт.

21

01640-21223

WASHER

SN: 10001-UP

8шт.

22

04050-13022

PIN

SN: 10001-UP

4шт.

23

415-54-28370

SPRING

SN: 10001-UP

2шт.

24

04205-10832

PIN

SN: 10001-UP

4шт.

25

01640-20816

WASHER

SN: 10001-UP

12шт.

26

04050-12015

PIN

SN: 10001-UP

4шт.

27

415-54-28560

BOOT

SN: 10001-UP

2шт.

28

416-54-28140

CAP

SN: 10001-UP

4шт.

29

01023-10414

SCREW

SN: 10001-UP

1шт.

30

08052-01311

CLIP

SN: 10001-UP

1шт.

31

01643-30623

WASHER

SN: 10001-UP

1шт.

32

01640-20408

WASHER

SN: 10001-UP

1шт.

33

01580-10403

NUT

SN: 10001-UP

1шт.

34

01010-81650

BOLT

SN: 10001-UP

8шт.

35

01643-31645

WASHER

SN: 10001-UP

8шт.

36

09824-K0480

PLATE

SN: 10001-UP

4шт.

37

415-54-28740

PLATE

SN: 10001-UP

1шт.

Выбрано товаров: 38