Запчасти Komatsu WA100M-6 CENTRAL СМАЗКА СИСТЕМА (ФИДЕР) (ПЕРЕДН. РАМА) (/) J ОСНОВНАЯ РАМА И ЕЕ ЧАСТИ

Схема запчастей Komatsu WA100M-6 - CENTRAL СМАЗКА СИСТЕМА (ФИДЕР) (ПЕРЕДН. РАМА) (/) J ОСНОВНАЯ РАМА И ЕЕ ЧАСТИ
d
k
i
j
p
n
s
t
u
c
l
m
e
g
f
h
o
q
r
u
t
r
s
p
q
o
n
d
c
e
f
g
m
h
k
j
i
l
1
1
2
3
5
6
6
3
5
4
7
FIT
1:1
100%

Артикул

Название

Примечание

Количество

1

0

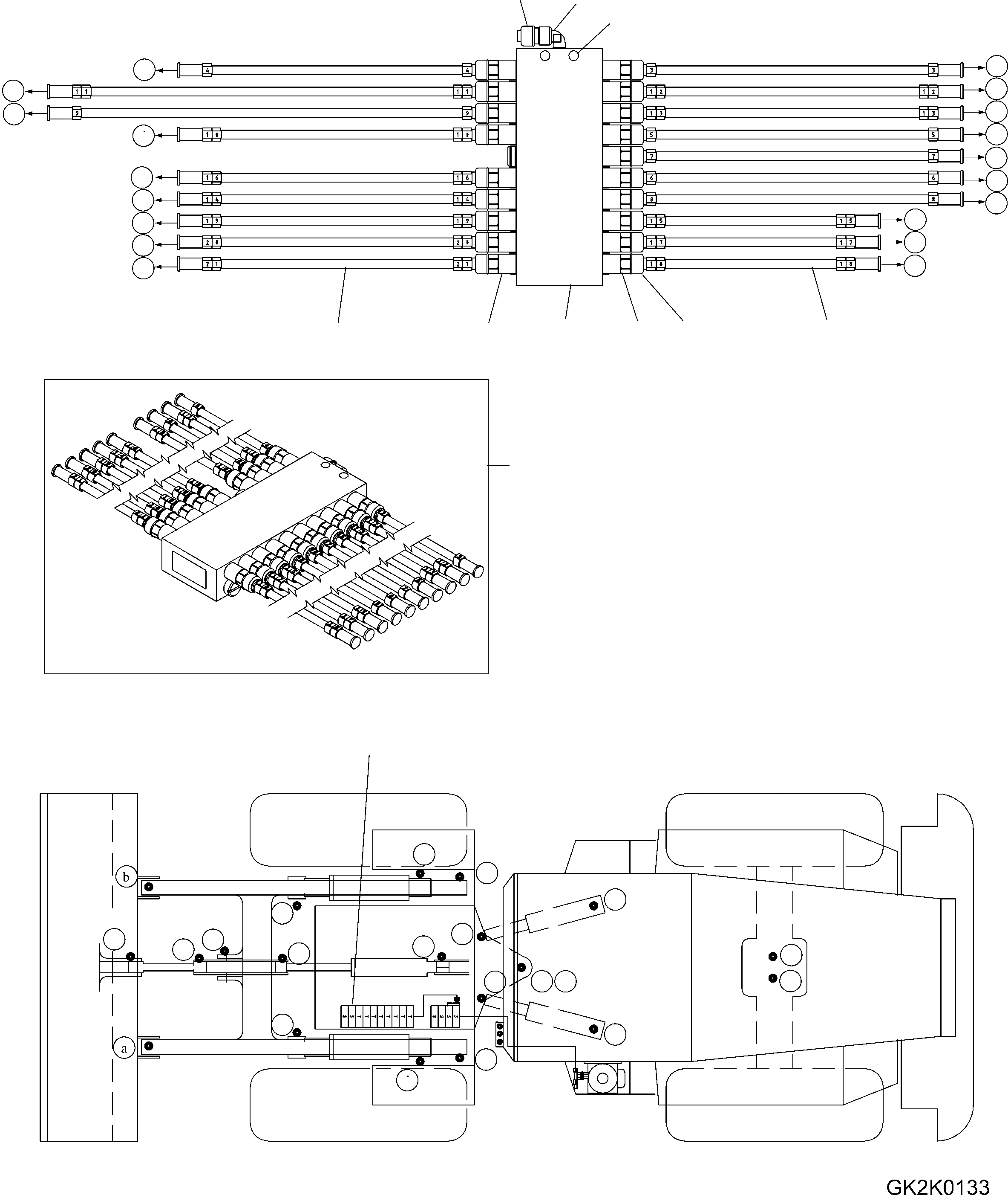
FEEDER ASSEMBLY

SN: H60051-UP

1шт.

2

42U-09-H5000

FEEDER

SN: H60051-UP

1шт.

3

42W-09-H4650

VALVE

SN: H60051-UP

19шт.

4

42W-09-H2270

ELBOW

SN: H60051-UP

1шт.

5

42W-09-H2940

SAFETY CAP

SN: H60051-UP

20шт.

6

42W-09-H0P00

HOSE, 5M

SN: H60051-UP

-26шт.

|$7

42W-09-H0P01

HOSE, 10M

SN: H60051-UP

-26шт.

|$8

42W-09-H0P02

HOSE, 25M

SN: H60051-UP

-26шт.

7

01252-70650

SCREW

SN: H60051-UP

2шт.

Выбрано товаров: 9