Запчасти Komatsu WA1200-3 СУППОРТ КАБИНА ОПЕРАТОРА И СИСТЕМА УПРАВЛЕНИЯ

Схема запчастей Komatsu WA1200-3 - СУППОРТ КАБИНА ОПЕРАТОРА И СИСТЕМА УПРАВЛЕНИЯ
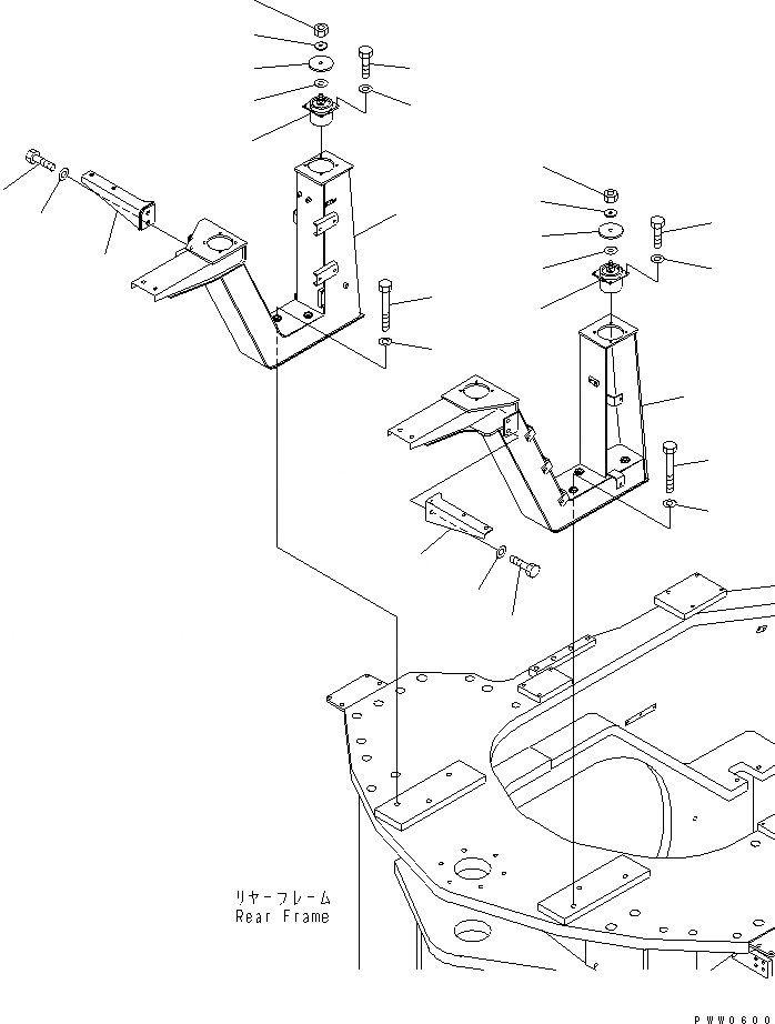
1
2
3
4
5
6
7
7
8
8
9
9
10
10
11
11
12
12
13
13
14
15
16
17
18
19
FIT
1:1
100%

Артикул

Название

Примечание

Количество

1

42C-54-13115

SUPPORT,L.H.

SN: 50001-UP

1шт.

|1

0

SUPPORT,L.H.

SN: (50001-50003)

1шт.

2

01011-81690

BOLT

SN: 50001-UP

3шт.

3

01643-31645

WASHER

SN: 50001-UP

3шт.

4

42C-54-13126

SUPPORT,R.H.

SN: 50001-UP

1шт.

|4

0

SUPPORT,R.H.

SN: (50001-50003)

1шт.

5

01011-81690

BOLT

SN: 50001-UP

3шт.

6

01643-31645

WASHER

SN: 50001-UP

3шт.

7

425-54-23130

MOUNT ASS'Y

SN: 50001-UP

4шт.

8

01010-81035

BOLT

SN: 50001-UP

16шт.

9

01643-31032

WASHER

SN: 50001-UP

16шт.

10

421-54-23260

PLATE

SN: 50001-UP

4шт.

11

425-70-11290

WASHER

SN: 50001-UP

4шт.

12

01596-01615

NUT,LOCK

SN: 50001-UP

4шт.

13

42C-54-13160

SHIM¤ 1.0MM

SN: 50001-UP

4шт.

14

42C-54-13131

BRACKET,L.H.

SN: 50001-UP

1шт.

15

01010-81640

BOLT

SN: 50001-UP

2шт.

16

01643-31645

WASHER

SN: 50001-UP

2шт.

17

42C-54-13141

BRACKET,R.H.

SN: 50001-UP

1шт.

18

01010-81640

BOLT

SN: 50001-UP

2шт.

19

01643-31645

WASHER

SN: 50001-UP

2шт.

Выбрано товаров: 21