Запчасти Komatsu WA1200-3 КРЫЛО И ЛЕСТНИЦА (COVER) ЧАСТИ КОРПУСА

Схема запчастей Komatsu WA1200-3 - КРЫЛО И ЛЕСТНИЦА (COVER) ЧАСТИ КОРПУСА
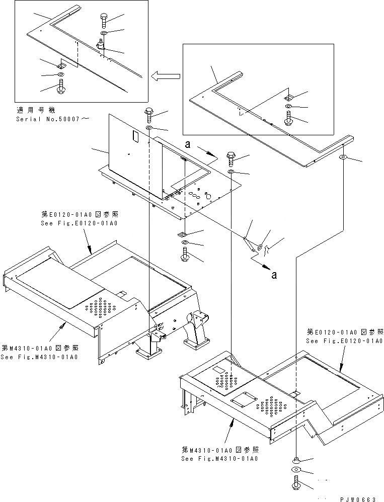
1
2
3
4
5
6
7
8
8
9
9
10
10
11
11
12
12
13
13
14
15
16
17
18
19
20
FIT
1:1
100%

Артикул

Название

Примечание

Количество

1

42C-54-14273

FLOOR

SN: 50011-UP

1шт.

|1

42C-54-14272

FLOOR

SN: 50001-50010

1шт.

2

425-54-13570

PLATE

SN: 50001-UP

1шт.

3

01435-01225

BOLT

SN: 50001-UP

2шт.

4

01643-31232

WASHER

SN: 50001-UP

2шт.

5

421-06-24230

BAR

SN: 50001-UP

1шт.

6

01640-20816

WASHER

SN: .-UP

2шт.

|6

0

WASHER

SN: 50001-.

2шт.

7

04052-10833

PIN,SNAP

SN: 50001-UP

1шт.

8

01435-01230

BOLT

SN: 50001-UP

6шт.

9

01643-31232

WASHER

SN: 50001-UP

6шт.

10

42C-54-14733

COVER

SN: 50007-UP

1шт.

|10

42C-54-14732

COVER

SN: 50001-50006

1шт.

11

425-54-13570

PLATE

SN: 50001-UP

2шт.

12

01435-01225

BOLT

SN: 50001-UP

4шт.

13

01643-31232

WASHER

SN: 50001-UP

4шт.

14

421-62-23350

CUSHION

SN: 50001-UP

4шт.

15

421-62-23710

CUSHION

SN: 50001-UP

4шт.

16

175-54-34170

WASHER

SN: 50001-UP

4шт.

17

01435-01235

BOLT

SN: 50001-UP

4шт.

18

23S-54-27720

CUSHION

SN: 50007-UP

2шт.

19

01010-80620

BOLT

SN: 50007-UP

4шт.

20

01643-30623

WASHER

SN: 50007-UP

4шт.

Выбрано товаров: 23