Запчасти Komatsu WA1200-3 КРЕПЛЕНИЯ АККУМУЛЯТОРАING (СТУПЕНИ) ЭЛЕКТРИКА

Схема запчастей Komatsu WA1200-3 - КРЕПЛЕНИЯ АККУМУЛЯТОРАING (СТУПЕНИ) ЭЛЕКТРИКА
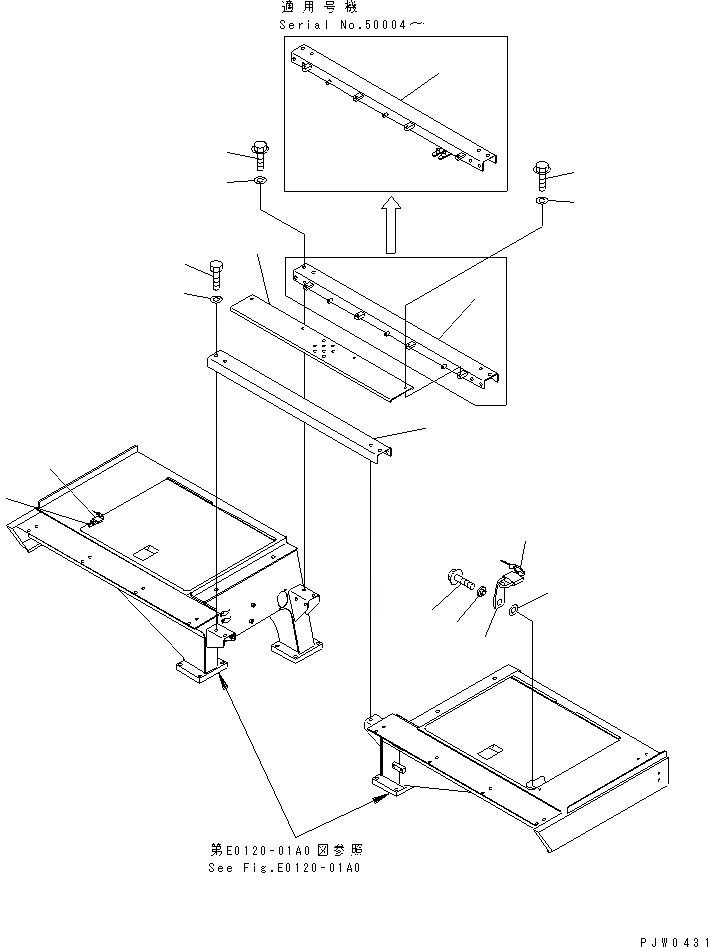
1
2
2
3
3
4
4
5
6
7
8
8
9
10
11
12
12
FIT
1:1
100%

Артикул

Название

Примечание

Количество

1

42C-54-14440

CHANNEL

SN: 50001-UP

1шт.

2

42C-54-14554

CHANNEL

SN: 50001-UP

1шт.

|2

0

CHANNEL

SN: (50003-50003)

1шт.

|2

0

CHANNEL

SN: (50001-50002)

1шт.

3

01010-81640

BOLT

SN: 50001-UP

16шт.

4

01643-31645

WASHER

SN: 50001-UP

16шт.

5

42C-54-14780

STEP

SN: 50001-UP

1шт.

6

01435-01235

BOLT

SN: 50001-UP

4шт.

7

01643-31232

WASHER

SN: 50001-UP

4шт.

8

42C-06-14160

PLATE

SN: 50001-UP

2шт.

9

419-S62-2260

COLLAR

SN: 50001-UP

2шт.

10

124-54-26540

WASHER

SN: 50001-UP

2шт.

11

01435-01235

BOLT

SN: 50001-UP

2шт.

12

09460-00002

LOCK

SN: 50001-UP

1шт.

Выбрано товаров: 14