Запчасти Komatsu WA1200-6 АВТОМАТИЧ.-СИСТ. СМАЗКИ СИСТЕМА, ВПРЫСК, ЗАДН. (№-) АВТОМАТИЧ.-СИСТ. СМАЗКИ СИСТЕМА

Схема запчастей Komatsu WA1200-6 - АВТОМАТИЧ.-СИСТ. СМАЗКИ СИСТЕМА, ВПРЫСК, ЗАДН. (№-) АВТОМАТИЧ.-СИСТ. СМАЗКИ СИСТЕМА
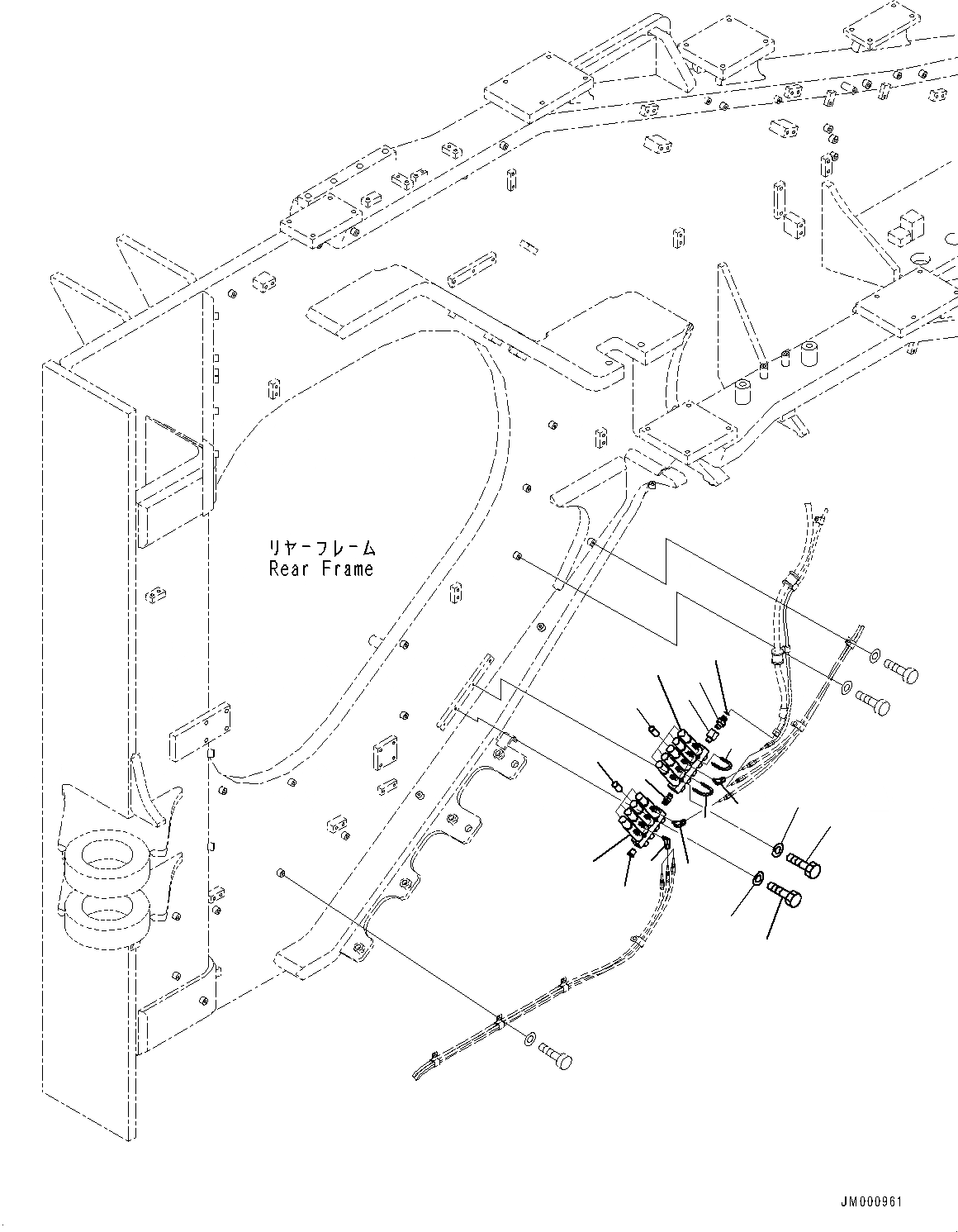
1
2
3
4
5
6
7
8
9
10
11
12
5
6
7
7
11
10
FIT
1:1
100%

Артикул

Название

Примечание

Количество

1

581-96-19530

Injector Assembly

SN: 60004-60014

1шт.

2

561-95-37450

Injector Assembly

SN: 60004-60014

1шт.

3

581-96-19580

Nipple

SN: 60004-60014

1шт.

4

581-96-19590

Plug

SN: 60004-60014

1шт.

5

581-96-19620

Cap

SN: 60004-60014

9шт.

6

427-S95-2150

Connector

SN: 60004-60014

2шт.

7

561-95-63250

Elbow

SN: 60004-60014

7шт.

8

565-82-11130

Bushing

SN: 60004-60014

1шт.

9

8296-62-1470

Connector

SN: 60004-60014

1шт.

10

01010-80845

Bolt

SN: 60004-60014

4шт.

11

01643-30823

Washer

SN: 60004-60014

4шт.

12

02896-11009

O-ring

SN: 60004-60014

1шт.

Выбрано товаров: 12