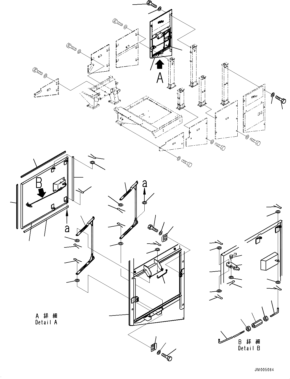
Запчасти Komatsu WA1200-6 ЗАЩИТА РАДИАТОРА AND КАПОТ,ДВЕРЬ, ПРАВ. (/) (№-) ЗАЩИТА РАДИАТОРА AND КАПОТ

Схема запчастей Komatsu WA1200-6 - ЗАЩИТА РАДИАТОРА AND КАПОТ,  ДВЕРЬ, ПРАВ. (/) (№-) ЗАЩИТА РАДИАТОРА AND КАПОТ
26
1
27
27
26
23
25
24
12
21
21
19
21
21
19
21
14
13
12
19
13
14
20
20
22
22
4
1
3
2
2
3
21
22
17
16
15
18
11
9
10
11
10
11
10
11
7
10
6
8
5
4
FIT
1:1
100%

Артикул

Название

Примечание

Количество

1

42C-54-16550

Cover, R.H.

SN: 60015-UP

1шт.

2

22T-54-19131

Seal, Door

SN: 60015-UP

2шт.

3

424-54-14150

Seal, Door

SN: 60015-UP

2шт.

4

42C-54-11612

Side Panel

SN: 60015-UP

1шт.

|$4

421-54-11364

Lock

SN: 60015-UP

1шт.

5

42C-54-11630

Rod, L.H.

SN: 60015-UP

1шт.

6

421-54-21780

Joint

SN: 60015-UP

1шт.

7

01580-10605

Nut

SN: 60015-UP

1шт.

8

01508-40603

Nut, Left-handed

SN: 60015-UP

1шт.

9

42C-54-11660

Rod

SN: 60015-UP

1шт.

10

01640-20610

Washer

SN: 60015-UP

4шт.

11

04050-11612

Pin, Cotter

SN: 60015-UP

4шт.

12

42C-54-11690

Plate

SN: 60015-UP

2шт.

13

01010-81225

Bolt

SN: 60015-UP

4шт.

14

01643-31232

Washer

SN: 60015-UP

4шт.

15

417-54-21650

Striker

SN: 60015-UP

1шт.

16

417-54-21610

Spring

SN: 60015-UP

1шт.

17

04050-13020

Pin, Cotter

SN: 60022-UP

1шт.

17

04050-12018

Pin, Cotter

SN: 60015-60021

1шт.

18

01640-21016

Washer

SN: 60015-UP

1шт.

19

01643-31032

Washer

SN: 60022-UP

4шт.

19

01640-21016

Washer

SN: 60015-60021

4шт.

20

42C-54-11652

Bracket

SN: 60015-UP

2шт.

21

04050-12018

Pin, Cotter

SN: 60015-UP

8шт.

22

01643-31032

Washer

SN: 60022-UP

4шт.

22

01643-31032

Washer

SN: 60015-60021

2шт.

23

42C-54-11990

Bar

SN: 60015-UP

1шт.

24

04050-11612

Pin, Cotter

SN: 60015-UP

1шт.

25

01640-20610

Washer

SN: 60015-UP

1шт.

26

01010-81225

Bolt

SN: 60015-UP

12шт.

27

01643-31232

Washer

SN: 60015-UP

12шт.

Выбрано товаров: 31