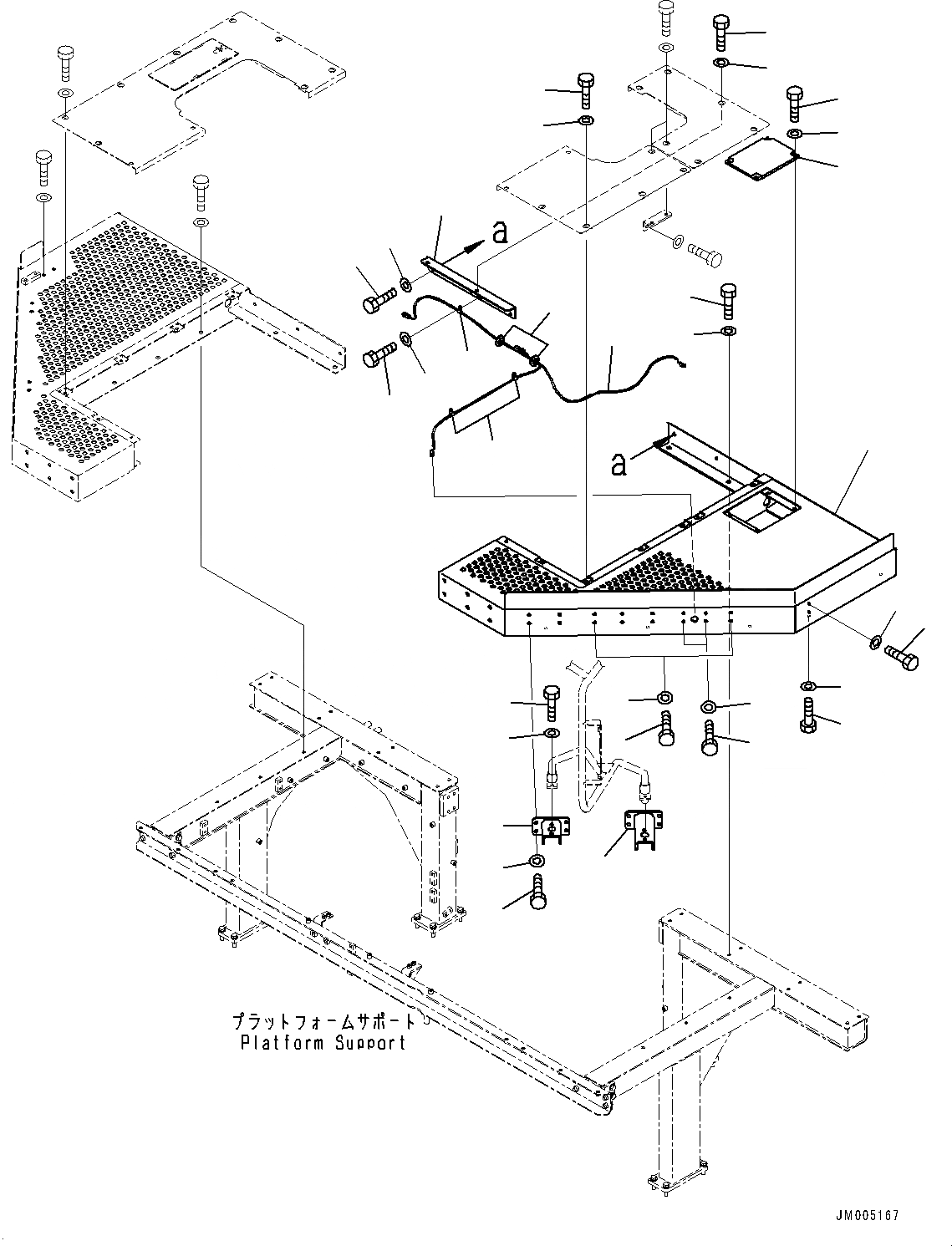
Запчасти Komatsu WA1200-6 ПЛАТФОРМА ГРУППА, ПЛАТФОРМА, ЛЕВ. (№-) ПЛАТФОРМА ГРУППА

Схема запчастей Komatsu WA1200-6 - ПЛАТФОРМА ГРУППА, ПЛАТФОРМА, ЛЕВ. (№-) ПЛАТФОРМА ГРУППА
1
2
3
4
7
8
9
10
11
12
15
16
27
28
6
5
7
8
13
14
25
24
18
19
26
23
17
23
22
21
20
5
6
FIT
1:1
100%

Артикул

Название

Примечание

Количество

1

42C-54-18210

Frame

SN: 60015-UP

1шт.

2

42C-54-16591

Cover

SN: 60015-UP

1шт.

3

01010-81225

Bolt

SN: 60015-UP

4шт.

4

01643-31232

Washer

SN: 60015-UP

4шт.

5

01010-81225

Bolt

SN: 60015-UP

9шт.

6

01643-31232

Washer

SN: 60015-UP

9шт.

7

01010-D1235

Bolt

SN: 60015-UP

10шт.

8

01643-71232

Washer

SN: 60015-UP

10шт.

9

42C-54-15240

Bracket

SN: 60015-UP

1шт.

10

42C-54-15250

Bracket

SN: 60015-UP

1шт.

11

01010-D1240

Bolt

SN: 60015-UP

8шт.

12

01643-71232

Washer

SN: 60015-UP

8шт.

13

01010-D1235

Bolt

SN: 60015-UP

4шт.

14

01643-71232

Washer

SN: 60015-UP

4шт.

15

01010-81225

Bolt

SN: 60015-UP

5шт.

16

01643-31232

Washer

SN: 60015-UP

5шт.

17

42C-54-16981

Bracket

SN: 60022-UP

1шт.

18

01010-81230

Bolt

SN: 60022-UP

3шт.

19

01643-31232

Washer

SN: 60022-UP

3шт.

20

01010-81030

Bolt

SN: 60022-UP

4шт.

21

01643-31032

Washer

SN: 60022-UP

4шт.

22

42C-Z89-8730

Wiring Harness

SN: 60022-UP

1шт.

|$22

Connector

SN: 60022-UP

1шт.

|$23

Connector Body Assembly

SN: 60022-UP

1шт.

|$24

Connector Body Assembly

SN: 60022-UP

2шт.

|$25

Connector

SN: 60022-UP

1шт.

23

600-051-2080

Clip

SN: 60022-UP

3шт.

24

01010-81016

Bolt

SN: 60022-UP

3шт.

25

01643-31032

Washer

SN: 60022-UP

3шт.

26

08037-03614

Grommet

SN: 60022-UP

2шт.

27

01010-81435

Bolt

SN: 60015-UP

11шт.

28

01643-31445

Washer, Flat

SN: 60015-UP

11шт.

Выбрано товаров: 32