Запчасти Komatsu WA150-3-SN ПОЛ (COVER) (КОНДИЦ. ВОЗДУХА И ОБОГРЕВАТЕЛЬ.)(№-) КАБИНА ОПЕРАТОРА И СИСТЕМА УПРАВЛЕНИЯ

Схема запчастей Komatsu WA150-3-SN - ПОЛ (COVER) (КОНДИЦ. ВОЗДУХА И ОБОГРЕВАТЕЛЬ.)(№-) КАБИНА ОПЕРАТОРА И СИСТЕМА УПРАВЛЕНИЯ
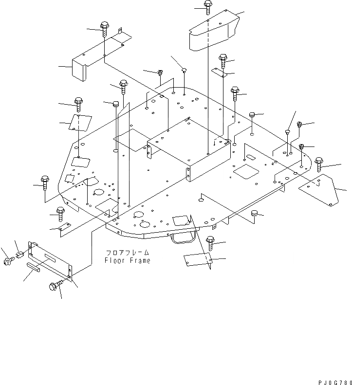
1
2
3
4
5
6
7
8
9
9
10
10
11
12
13
14
15
15
16
17
18
19
20
21
21
22
22
22
23
23
FIT
1:1
100%

Артикул

Название

Примечание

Количество

1

421-54-22121

COVER

SN: 64225-UP

1шт.

2

08052-01311

CLIP

SN: 64225-UP

1шт.

3

01023-10612

SCREW

SN: 64225-UP

1шт.

4

421-54-22750

HANDLE

SN: 64225-UP

1шт.

5

01435-00616

BOLT

SN: 64225-UP

4шт.

6

01435-00616

BOLT

SN: 64225-UP

1шт.

7

417-54-22280

COVER

SN: 64225-UP

1шт.

8

01435-00616

BOLT

SN: 64225-UP

4шт.

9

416-54-26140

PLATE

SN: 64225-UP

2шт.

10

01435-00616

BOLT

SN: 64225-UP

4шт.

11

416-54-22240

PLATE

SN: 64225-UP

1шт.

12

01435-01220

BOLT

SN: 64225-UP

3шт.

13

416-54-22250

PLATE

SN: 64225-UP

1шт.

14

01435-00616

BOLT

SN: 64225-UP

2шт.

15

09415-02520

CAP

SN: 64225-UP

2шт.

16

09415-01610

CAP

SN: 64225-UP

2шт.

17

417-54-22470

PLATE

SN: 64225-UP

1шт.

18

01435-00616

BOLT

SN: 64225-UP

2шт.

19

417-54-22290

COVER

SN: 64225-UP

1шт.

20

01435-00612

BOLT

SN: 64225-UP

3шт.

21

20Y-54-14540

PLUG

SN: 64225-UP

15шт.

22

421-54-21850

PLUG

SN: 64225-UP

9шт.

23

01435-01220

BOLT

SN: 64225-UP

3шт.

Выбрано товаров: 23