Запчасти Komatsu WA150-5-CN НАСОС (/) ОСНОВН. КОМПОНЕНТЫ И РЕМКОМПЛЕКТЫ

Схема запчастей Komatsu WA150-5-CN - НАСОС (/) ОСНОВН. КОМПОНЕНТЫ И РЕМКОМПЛЕКТЫ
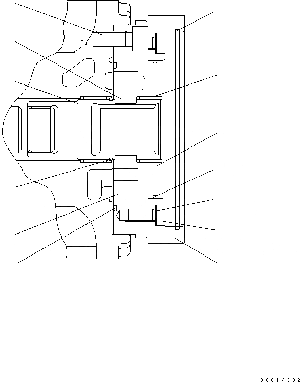
1
2
3
4
5
6
7
8
9
10
11
12
13
FIT
1:1
100%

Артикул

Название

Примечание

Количество

|$$1

B6 Д јЩ»ЪА МЮЛЭ К АЭЛЯЭ ГЮ О·­і ГЮ·ПѕЭЎ їЙ О¶ Ж B6 Д јЩ»ЪА МЮЛЭ ¦ ёР Ж јГ О·­іј Г ёАЮ»ІЎ

-1шт.

|$$2

B7 Д јЩ»ЪА МЮЛЭ К АЭЛЯЭ ГЮ О·­і ГЮ·ПѕЭЎ їЙ О¶ Ж B7 Д јЩ»ЪА МЮЛЭ ¦ ёР Ж јГ О·­іј Г ёАЮ»ІЎ

-1шт.

|1

416-18-31601

PUMP

SN: 65001-UP

1шт.

|1

0

GEAR PUMP

SN: 65001-UP

1шт.

1

UC1096511474

FLANGE B6

SN: 65001-UP

1шт.

2

UC1020779462

COVER B6

SN: 65001-UP

1шт.

3

UC1704491361

METAL B6

SN: 65001-UP

1шт.

4

UC1096503877

DRIVE SHAFT B7

SN: 65001-UP

1шт.

5

UC4020062587

GEAR B6

SN: 65001-UP

1шт.

6

UC1720256499

KEY B7

SN: 65001-UP

1шт.

7

UC1701569306

RING

SN: 65001-UP

1шт.

8

UC1090830605

BOLT

SN: 65001-UP

4шт.

9

UC1700831903

BOLT

SN: 65001-UP

8шт.

10

UC1300305002

O-RING

SN: 65001-UP

1шт.

11

UC1701524936

SEAL

SN: 65001-UP

8шт.

12

UC1303046825

O-RING

SN: 65001-UP

1шт.

13

UC1300301009

O-RING

SN: 1-UP

1шт.

Выбрано товаров: 17