Запчасти Komatsu WA150-5 КОВШ ПОЗИЦИОНЕР КАБИНА ОПЕРАТОРА И СИСТЕМА УПРАВЛЕНИЯ

Схема запчастей Komatsu WA150-5 - КОВШ ПОЗИЦИОНЕР КАБИНА ОПЕРАТОРА И СИСТЕМА УПРАВЛЕНИЯ
1
1
2
3
4
5
6
7
8
9
10
10
10
11
11
12
13
14
FIT
1:1
100%

Артикул

Название

Примечание

Количество

1

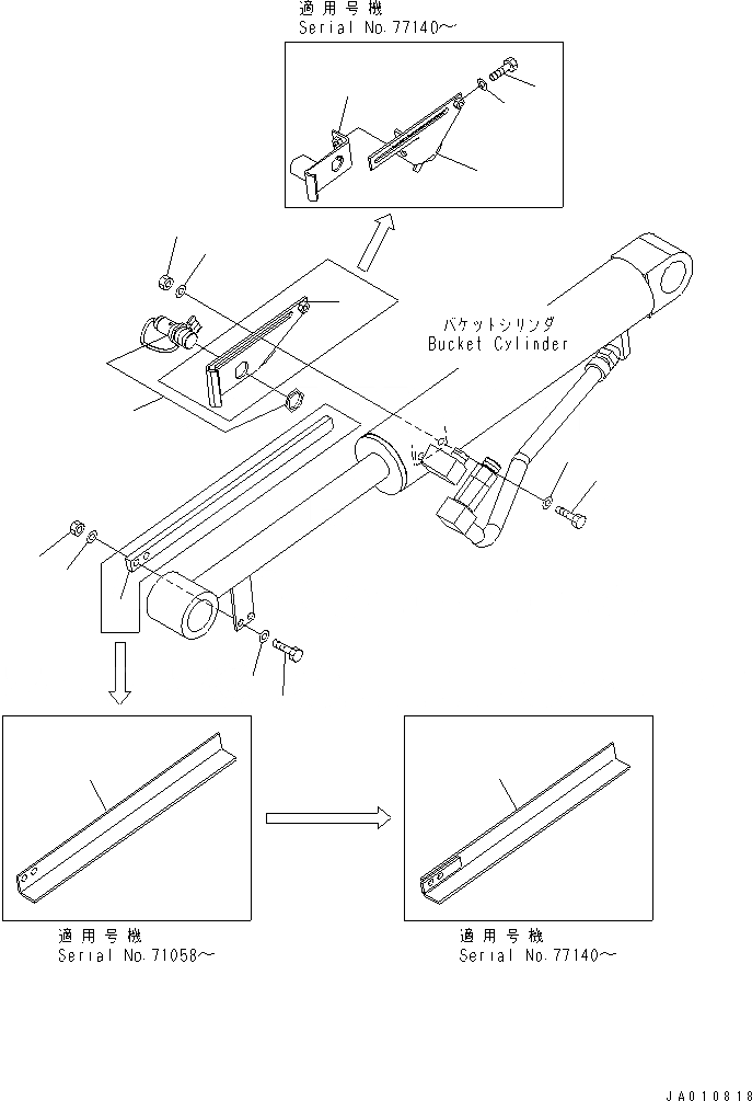
416-44-41130

PLATE

SN: 77140-UP

1шт.

1

0

PLATE

SN: 65001-77139

1шт.

2

01010-81030

BOLT

SN: 65001-UP

2шт.

3

01643-31032

WASHER

SN: 65001-UP

2шт.

4

01580-11008

NUT

SN: 65001-UP

2шт.

5

01643-31032

WASHER

SN: 65001-UP

2шт.

6

416-44-41140

BRACKET

SN: 77140-UP

1шт.

7

01010-81025

BOLT

SN: 77140-UP

2шт.

8

01643-31032

WASHER

SN: 77140-UP

2шт.

9

56B-06-15610

SWITCH

SN: 65001-UP

1шт.

10

416-44-41150

BAR

SN: 77140-UP

1шт.

10

0

BAR

SN: 75482-77139

1шт.

10

0

BAR

SN: 71058-75481

1шт.

10

416-44-31121

BAR

SN: 65001-71057

1шт.

11

01010-81040

BOLT

SN: 77140-UP

2шт.

11

01010-81035

BOLT

SN: 65001-77139

2шт.

12

01643-31032

WASHER

SN: 65001-UP

2шт.

13

01580-11008

NUT

SN: 65001-UP

2шт.

14

01643-31032

WASHER

SN: 65001-UP

2шт.

Выбрано товаров: 19