Запчасти Komatsu WA150-5-TK РАДИАТОР (LIVESTOCK RASING СПЕЦ-Я.) СИСТЕМА ОХЛАЖДЕНИЯ

Схема запчастей Komatsu WA150-5-TK - РАДИАТОР (LIVESTOCK RASING СПЕЦ-Я.) СИСТЕМА ОХЛАЖДЕНИЯ
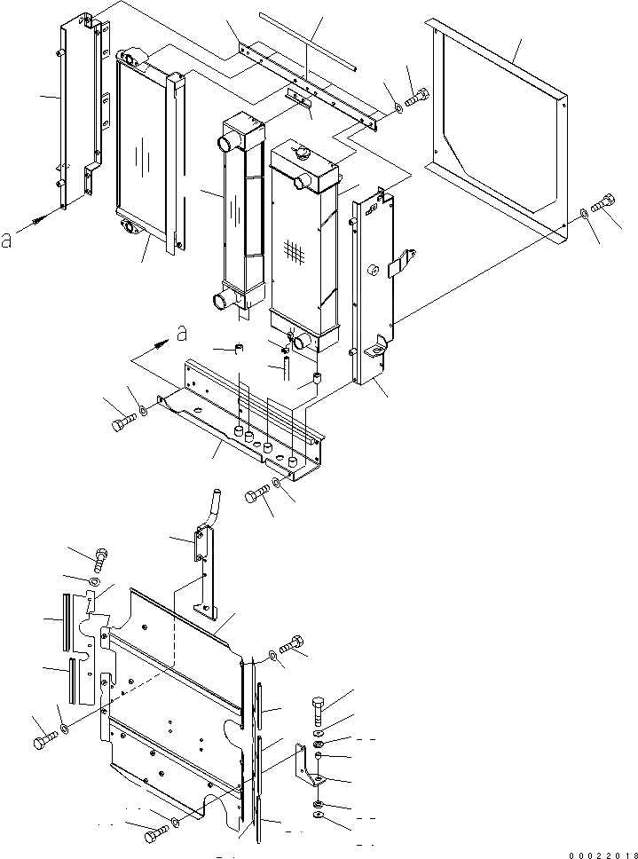
1
2
3
4
5
6
7
8
9
9
10
11
11
11
11
12
12
12
12
13
14
15
16
17
18
18
19
19
20
21
22
22
23
23
24
25
26
27
28
29
30
31
32
33
34
35
FIT
1:1
100%

Артикул

Название

Примечание

Количество

|1

416-03-31501

RADIATOR ASS'Y

SN: 65001-UP

1шт.

1

416-03-32451

RADIATOR

SN: 65001-UP

1шт.

2

416-03-32461

OIL COOLER

SN: 65001-UP

1шт.

3

416-03-32471

AFTER COOLER

SN: 65001-UP

1шт.

4

416-03-31551

PLATE

SN: 65001-UP

1шт.

5

416-03-31561

FRAME

SN: 65001-UP

1шт.

6

416-03-31510

FRAME,L.H.

SN: 65001-UP

1шт.

7

416-03-31521

FRAME,R.H.

SN: 65001-UP

1шт.

8

418-03-31452

SHROUD

SN: 65001-UP

1шт.

9

418-03-31480

CUSHION

SN: 65001-UP

4шт.

10

416-03-31570

PLATE

SN: 65001-UP

1шт.

11

01010-81020

BOLT

SN: 65001-UP

20шт.

12

01643-31032

WASHER

SN: 65001-UP

20шт.

13

418-03-31570

HOSE

SN: 65001-UP

1шт.

14

20Y-03-11330

CLIP

SN: 65001-UP

1шт.

15

416-03-31164

PLATE

SN: 65001-UP

1шт.

16

416-03-31310

BRACKET,L.H.

SN: 65001-UP

1шт.

17

416-03-31322

BRACKET

SN: 65001-UP

1шт.

18

01010-81020

BOLT

SN: 65001-UP

4шт.

19

01643-31032

WASHER

SN: 65001-UP

4шт.

20

01010-81245

BOLT

SN: 65001-UP

2шт.

21

421-03-11530

SPACER

SN: 65001-UP

2шт.

22

416-03-11260

CUSHION

SN: 65001-UP

4шт.

23

419-43-17920

WASHER

SN: 65001-UP

4шт.

24

416-03-31342

PLATE

SN: 65001-UP

1шт.

25

01010-81020

BOLT

SN: 65001-UP

4шт.

26

01643-31032

WASHER

SN: 65001-UP

4шт.

27

23S-54-36560

SEAL

SN: 65001-UP

1шт.

28

416-03-31380

SEAL

SN: 65001-UP

1шт.

29

23S-54-36560

SEAL

SN: 65001-UP

1шт.

30

416-03-31362

PLATE

SN: 65001-UP

1шт.

31

01010-81020

BOLT

SN: 65001-UP

3шт.

32

01643-31032

WASHER

SN: 65001-UP

3шт.

33

416-03-31380

SEAL

SN: 65001-UP

1шт.

34

23S-54-36560

SEAL

SN: 65001-UP

1шт.

35

416-03-31470

SHEET

SN: 65001-UP

1шт.

Выбрано товаров: 0