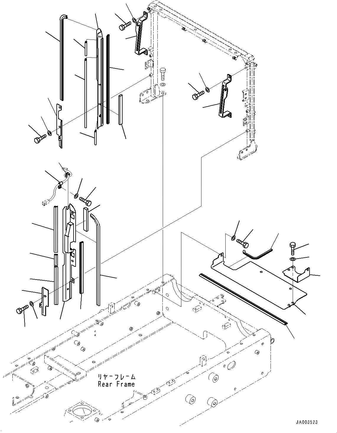
Запчасти Komatsu WA150-6 КАПОТ, ДЕФЛЕКТОР (№8-) КАПОТ, С СИСТЕМОЙ ROPS, ЗАДН. ПОЛН. КРЫЛО

Схема запчастей Komatsu WA150-6 - КАПОТ, ДЕФЛЕКТОР (№8-) КАПОТ, С СИСТЕМОЙ ROPS, ЗАДН. ПОЛН. КРЫЛО
42
42
42
42
11
11
12
12
14
39
27
14
26
26
30
28
31
31
33
33
34
39
35
36
36
36
38
37
40
1
3
4
6
8
9
5
2
2
7
7
10
10
5
14
17
16
23
15
18
21
19
22
20
25
24
13
32
29
41
13
32
27
1
2
3
4
9
10
13
14
27
26
24
25
23
15
16
17
18
19
20
18
17
29
21
30
31
14
13
28
26
12
11
8
7
6
5
24
25
22
FIT
1:1
100%

Артикул

Название

Примечание

Количество

1

23S-61-51290

Seal

SN: 80001-UP

1шт.

2

416-54-43890

Seal

SN: 80001-UP

1шт.

3

23S-61-51290

Seal

SN: 80001-UP

1шт.

4

416-54-43950

Seal

SN: 80001-UP

1шт.

5

23S-54-27530

Seal

SN: 80001-UP

1шт.

6

416-54-43970

Seal

SN: 80001-UP

1шт.

7

23S-54-27790

Seal

SN: 80001-UP

1шт.

8

23S-54-27960

Seal

SN: 80001-UP

1шт.

9

416-54-43391

Cover

SN: 80116-UP

1шт.

9

416-54-43390

Cover

SN: 80001-80115

1шт.

10

416-54-43490

Plate

SN: 80001-UP

1шт.

11

416-54-43381

Cover

SN: 80116-UP

1шт.

11

416-54-43380

Cover

SN: 80001-80115

1шт.

12

416-54-43480

Plate

SN: 80001-UP

1шт.

13

01010-81016

Bolt

SN: 80001-UP

8шт.

14

01643-31032

Washer

SN: 80001-UP

8шт.

15

416-54-41390

Plate

SN: 80001-UP

1шт.

16

416-54-41490

Plate

SN: 80001-UP

1шт.

17

01010-81020

Bolt

SN: 80001-UP

6шт.

18

01643-31032

Washer

SN: 80001-UP

6шт.

19

419-54-31290

Finisher

SN: 80001-UP

1шт.

20

418-54-21710

Seal

SN: 80001-UP

1шт.

21

22W-22-17460

Grommet

SN: 80001-UP

1шт.

22

416-54-44770

Bracket

SN: 80001-UP

1шт.

23

416-54-44780

Bracket

SN: 80001-UP

1шт.

24

01010-81020

Bolt

SN: 80001-UP

4шт.

25

01643-31032

Washer

SN: 80001-UP

4шт.

26

417-54-21850

Seal

SN: 80001-UP

2шт.

27

416-54-43830

Sheet

SN: 80001-UP

1шт.

28

416-54-43870

Sheet

SN: 80001-UP

1шт.

29

04434-51012

Clip

SN: 80001-UP

1шт.

30

01010-81020

Bolt

SN: 80001-UP

1шт.

31

01643-31032

Washer

SN: 80001-UP

1шт.

Выбрано товаров: 33