Запчасти Komatsu WA150-6 МАРКИРОВКА, ИНТЕРЬЕР (№8-) МАРКИРОВКА, ИСПАНИЯ

Схема запчастей Komatsu WA150-6 - МАРКИРОВКА, ИНТЕРЬЕР (№8-) МАРКИРОВКА, ИСПАНИЯ
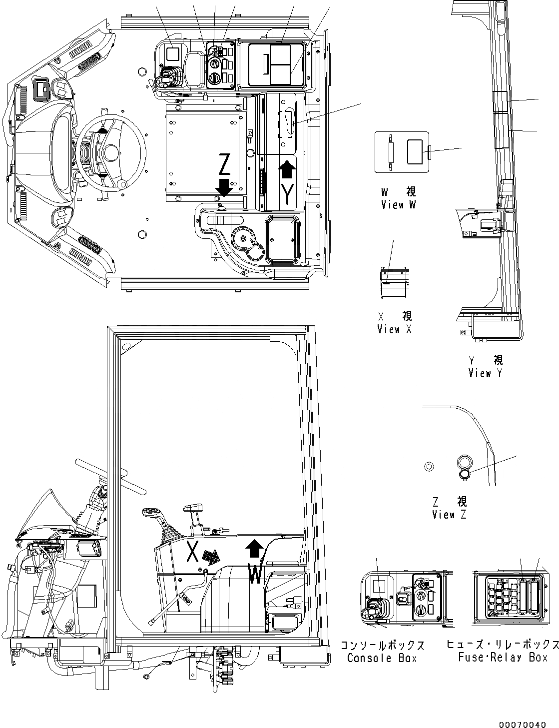
6
9
1
2
15
14
5
13
11
3
10
12
7
8
4
FIT
1:1
100%

Артикул

Название

Примечание

Количество

1

09651-01001

Plate, Warning, Read Manual Before Operating

SN: 80015-UP

1шт.

1

418-V00-4210

Plate

SN: 80015-UP

1шт.

2

Plate, Warning, Before Operating and Traveling

SN: 80015-UP

1шт.

3

Plate, Main Switch

SN: 80015-UP

1шт.

4

Plate, Warning, Work Equipment Lock Lever

SN: 80015-UP

1шт.

5

Plate, Work Equipment Control Lever Pattern

SN: 80015-UP

1шт.

6

Plate, Relay

SN: 80015-UP

1шт.

7

Plate, Fuse 1

SN: 80015-UP

1шт.

8

Plate, Fuse 2

SN: 80015-UP

1шт.

9

Plate, Air Conditioner Filter

SN: 80015-UP

1шт.

10

418-93-22311

Plate, HST Variable Shift Control

SN: 80015-UP

1шт.

11

418-93-42340

Decal, HST Traction Control

SN: 80015-UP

1шт.

12

418-V00-4220

Plate

SN: 80015-UP

1шт.

13

09654-01001

Plate, Warning, Before Leaving Seat

SN: 80015-UP

1шт.

14

09801-11001

Plate, Danger, High Voltage Hazard

SN: 80015-UP

1шт.

15

22U-00-21510

Plate, 12volt Socket

SN: 80015-UP

1шт.

Выбрано товаров: 16