Запчасти Komatsu WA200-3-X НАВЕС(№-) РАМА И ЧАСТИ КОРПУСА

Схема запчастей Komatsu WA200-3-X - НАВЕС(№-) РАМА И ЧАСТИ КОРПУСА
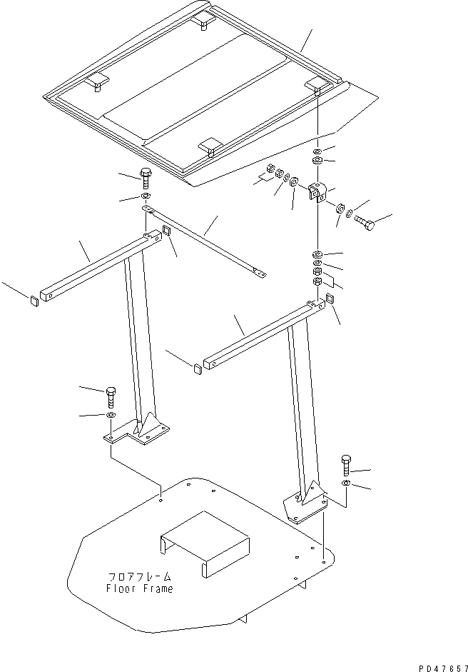
1
2
3
3
3
3
4
4
5
5
6
7
8
9
10
11
11
11
11
12
13
13
14
14
14
14
FIT
1:1
100%

Артикул

Название

Примечание

Количество

1

416-54-28110

POLE,L.H.

SN: 60001-UP

1шт.

2

416-54-28120

POLE,R.H.

SN: 60001-UP

1шт.

3

416-54-28140

CAP

SN: 60001-UP

4шт.

4

01010-51650

BOLT

SN: 60001-UP

8шт.

5

01643-31645

WASHER

SN: 60001-UP

8шт.

6

416-54-28130

PIPE

SN: 60001-UP

1шт.

7

01435-01020

BOLT

SN: 60001-UP

4шт.

8

01643-31032

WASHER

SN: 60001-UP

4шт.

9

416-54-28150

ROOF

SN: 60001-UP

1шт.

10

417-54-18260

BELT

SN: 60001-UP

4шт.

11

417-54-18270

CUSHION

SN: 60001-UP

16шт.

12

01011-51215

BOLT

SN: 60001-UP

4шт.

13

01580-11210

NUT

SN: 60001-UP

16шт.

14

417-54-18240

WASHER

SN: 60001-UP

16шт.

Выбрано товаров: 14