Запчасти Komatsu WA200-5-SS ОТВАЛ (НЕСУЩИЙ ЭЛЕМЕНТ) (S.P.A.P.) (С SHOCK CANCEL) (/) РАБОЧЕЕ ОБОРУДОВАНИЕ

Схема запчастей Komatsu WA200-5-SS - ОТВАЛ (НЕСУЩИЙ ЭЛЕМЕНТ) (S.P.A.P.) (С SHOCK CANCEL) (/) РАБОЧЕЕ ОБОРУДОВАНИЕ
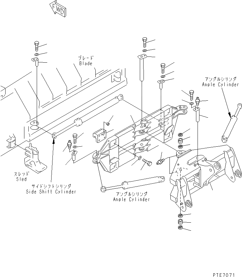
1
2
3
4
5
6
7
7
8
8
8
8
9
10
11
12
13
14
15
16
17
18
19
20
21
21
22
22
23
23
FIT
1:1
100%

Артикул

Название

Примечание

Количество

1

417-905-3150

CARRIER

SN: 65001-UP

1шт.

2

418-905-1172

FRAME,GUIDE

SN: 65001-UP

1шт.

3

418-905-1180

GUIDE

SN: 65001-UP

4шт.

4

01010-82065

BOLT

SN: 65001-UP

16шт.

5

01643-32060

WASHER

SN: 65001-UP

16шт.

6

07049-02430

PLUG

SN: 65001-UP

4шт.

7

07144-10604

BUSHING

SN: 65001-UP

2шт.

8

417-09-11120

SEAL,DUST

SN: 65001-UP

4шт.

9

07020-00000

FITTING,GREASE

SN: 65001-UP

2шт.

10

423-905-1220

PIN

SN: 65001-UP

1шт.

11

01010-81625

BOLT

SN: 65001-UP

1шт.

12

421-70-11280

WASHER

SN: 65001-UP

1шт.

13

423-904-1210

PIN

SN: 65001-UP

2шт.

14

01010-81220

BOLT

SN: 65001-UP

2шт.

15

175-54-34170

WASHER

SN: 65001-UP

2шт.

16

07020-00000

FITTING,GREASE

SN: 65001-UP

2шт.

17

423-905-1230

PIN

SN: 65001-UP

2шт.

18

01010-81220

BOLT

SN: 65001-UP

2шт.

19

175-54-34170

WASHER

SN: 65001-UP

2шт.

20

07020-00000

FITTING,GREASE

SN: 65001-UP

2шт.

21

419-46-12260

PIN

SN: 65001-UP

2шт.

22

01010-81220

BOLT

SN: 65001-UP

2шт.

23

175-54-34170

WASHER

SN: 65001-UP

2шт.

Выбрано товаров: 23