Запчасти Komatsu WA200-6 ЗАДН. ЭЛЕКТРИЧ. ПРОВОДКА, ПРОВОДКА КРЕПЛЕНИЕ, ДВИГАТЕЛЬ (№7-) ЗАДН. ЭЛЕКТРИЧ. ПРОВОДКА, БЕЗ ЭКСТРЕНН. РУЛЕВ. УПРАВЛЕНИЕ, АВТОМАТИЧ. УПРАВЛ-Е ТИП

Схема запчастей Komatsu WA200-6 - ЗАДН. ЭЛЕКТРИЧ. ПРОВОДКА, ПРОВОДКА КРЕПЛЕНИЕ, ДВИГАТЕЛЬ (№7-) ЗАДН. ЭЛЕКТРИЧ. ПРОВОДКА, БЕЗ ЭКСТРЕНН. РУЛЕВ. УПРАВЛЕНИЕ, АВТОМАТИЧ. УПРАВЛ-Е ТИП
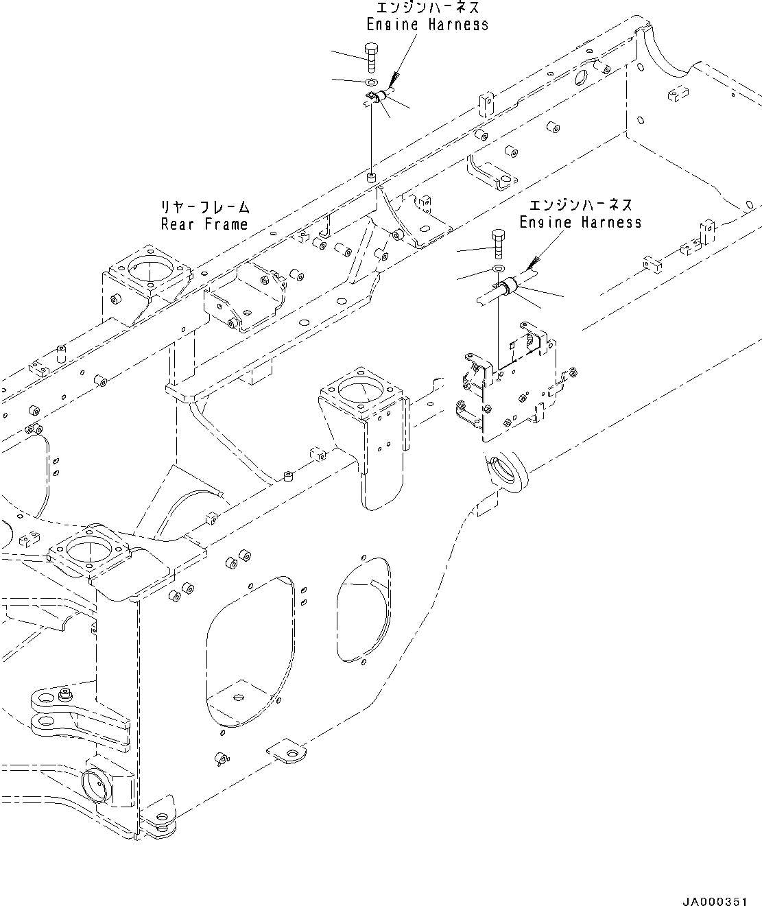
1
2
4
3
5
6
6
5
FIT
1:1
100%

Артикул

Название

Примечание

Количество

1

04434-53212

Clip

SN: 70001-UP

1шт.

2

07095-20523

Cushion

SN: 70001-UP

1шт.

3

04434-51712

Clip

SN: 70001-UP

1шт.

4

07095-20211

Cushion

SN: 70001-UP

1шт.

5

01010-81020

Bolt

SN: 70001-UP

2шт.

6

01643-31032

Washer

SN: 70001-UP

2шт.

Выбрано товаров: 6