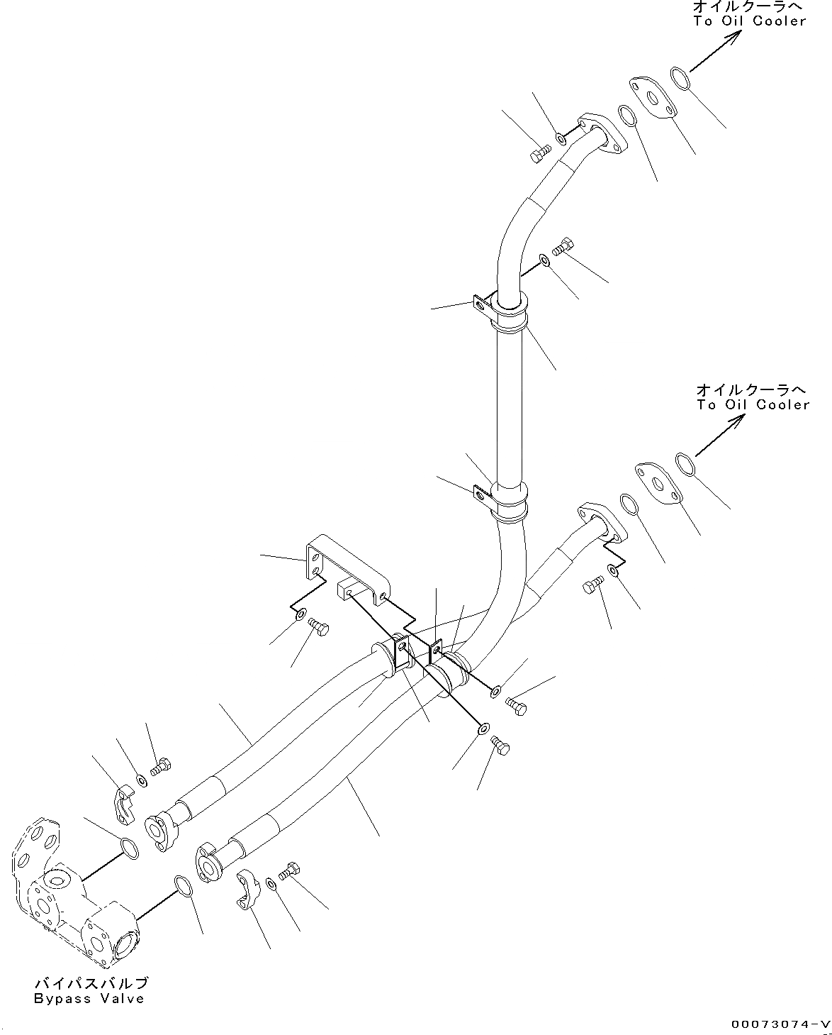
Запчасти Komatsu WA200-6 ГИДРОЛИНИЯ, МАСЛООХЛАДИТЕЛЬ (№78-78) ГИДРОЛИНИЯ, С 3-Х СЕКЦ. КОНТР. КЛАПАНОМ, ВЫСОК. ПОДЪЕМ РУКОЯТЬ, ECSS

Схема запчастей Komatsu WA200-6 - ГИДРОЛИНИЯ, МАСЛООХЛАДИТЕЛЬ (№78-78) ГИДРОЛИНИЯ, С 3-Х СЕКЦ. КОНТР. КЛАПАНОМ, ВЫСОК. ПОДЪЕМ РУКОЯТЬ, ECSS
13
14
11
12
14
11
12
14
9
10
2
3
7
3
6
4
5
11
12
11
12
16
9
10
1
3
7
3
6
4
5
15
15
15
8
17
8
FIT
1:1
100%

Артикул

Название

Примечание

Количество

1

417-62-41680

Hose

SN: 70683-@

1шт.

2

417-62-41690

Hose

SN: 70683-@

1шт.

3

07000-13032

O-ring

SN: 70683-@

4шт.

4

07372-21035

Bolt

SN: 70683-@

8шт.

5

01643-51032

Washer

SN: 70683-@

8шт.

6

07371-31049

Flange, Split

SN: 70683-@

4шт.

7

01010-81040

Bolt

SN: 70683-@

4шт.

8

01643-31032

Washer

SN: 70683-@

4шт.

9

418-62-33550

Flange

SN: 70683-@

2шт.

10

07000-13035

O-ring

SN: 70683-@

2шт.

11

419-09-11150

Clip

SN: 70683-70826

4шт.

12

21T-62-76840

Cushion

SN: 70683-@

4шт.

13

417-62-41710

Bracket

SN: 70683-@

1шт.

14

01010-81020

Bolt

SN: 70683-70826

4шт.

15

01643-31032

Washer

SN: 70683-70826

4шт.

16

01010-81025

Bolt

SN: 70683-70826

2шт.

17

01643-31032

Washer

SN: 70683-70826

2шт.

Выбрано товаров: 17