Запчасти Komatsu WA250-3MC K7-8A КОНДИЦ. ВОЗДУХА КРЕПЛЕНИЕ КОНДЕНСАТОРА OPERATORXD S ОБСТАНОВКА И СИСТЕМА УПРАВЛЕНИЯ

Схема запчастей Komatsu WA250-3MC - K7-8A КОНДИЦ. ВОЗДУХА КРЕПЛЕНИЕ КОНДЕНСАТОРА OPERATORXD S ОБСТАНОВКА И СИСТЕМА УПРАВЛЕНИЯ
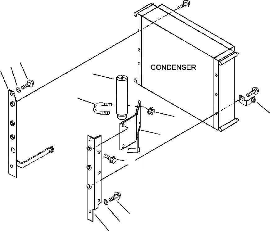
4
5
3
10
8
9
2
6
4
5
1
7
FIT
1:1
100%

Артикул

Название

Примечание

Количество

1

418-S62-2411

PLATE, L.H.

SN: A71001 --UP

1шт.

2

418-S62-2460

BRACKET

SN: A71001 --UP

1шт.

3

418-07-22242

PLATE, R.H.

SN: A71001 --UP

1шт.

4

01435-01225

BOLT

SN: A71001 --UP

4шт.

5

01643-31232

WASHER

SN: A71001 --UP

4шт.

6

418-S62-2420

BRACKET

SN: A71001 --UP

1шт.

7

01435-01225

BOLT

SN: A71001 --UP

2шт.

8

07283-36155

CLIP

SN: A71001 --UP

2шт.

9

01595-01008

NUT

SN: A71001 --UP

4шт.

10

TANK, RECEIVER (SEE FIG. K0710-01A2 )

SN: A71001 --UP

-1шт.

Выбрано товаров: 10