Запчасти Komatsu WA250-5L КОРПУС ОХЛАЖД-Я И ОБОГРЕВА (С КОНДИЦИОНЕРОМ LESS) КАБИНА ОПЕРАТОРА И СИСТЕМА УПРАВЛЕНИЯ

Схема запчастей Komatsu WA250-5L - КОРПУС ОХЛАЖД-Я И ОБОГРЕВА (С КОНДИЦИОНЕРОМ LESS) КАБИНА ОПЕРАТОРА И СИСТЕМА УПРАВЛЕНИЯ
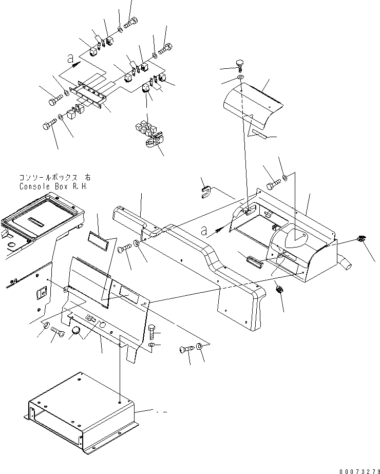
1
2
3
3
3
4
4
4
5
6
7
8
9
10
11
12
13
14
15
16
17
18
19
19
19
20
21
21
22
22
23
23
24
25
26
27
27
28
29
30
31
32
33
FIT
1:1
100%

Артикул

Название

Примечание

Количество

1

418-54-32323

CONSOLE BOX

SN: A73001-UP

1шт.

2

23S-55-51530

CLIP

SN: A73001-UP

1шт.

3

418-926-3490

WASHER

SN: A73001-UP

12шт.

4

01225-70616

SCREW

SN: A73001-UP

12шт.

5

01643-31032

WASHER

SN: A73001-UP

4шт.

6

01010-81020

BOLT

SN: A73001-UP

4шт.

7

418-54-22190

CUSHION

SN: A73001-UP

1шт.

8

23S-55-51530

CLIP

SN: A73001-UP

1шт.

9

418-54-32341

COVER

SN: A73001-UP

1шт.

10

418-54-32332

COVER

SN: A73001-UP

1шт.

11

09415-02512

CAP

SN: A73001-UP

2шт.

12

01010-80616

BOLT

SN: A73001-UP

1шт.

13

01643-30623

WASHER

SN: A73001-UP

1шт.

14

421-54-22750

HANDLE

SN: A73001-UP

1шт.

15

421-09-21260

SCREW

SN: A73001-UP

2шт.

16

01640-20610

WASHER

SN: A73001-UP

2шт.

17

424-09-12610

COVER

SN: A73001-UP

1шт.

18

421-54-22520

FINISHER

SN: A73001-UP

1шт.

19

569-06-61960

RELAY

SN: A73001-UP

5шт.

20

569-06-61970

RELAY

SN: A73001-UP

1шт.

21

287-06-16420

BRACKET

SN: A73001-UP

6шт.

22

01010-80616

BOLT

SN: A73001-UP

6шт.

23

01643-30623

WASHER

SN: A73001-UP

6шт.

24

01010-80614

BOLT

SN: A73001-UP

2шт.

25

01643-30623

WASHER

SN: A73001-UP

2шт.

26

418-54-32931

BRACKET

SN: A73001-UP

1шт.

27

569-06-61960

RELAY

SN: A73001-UP

6шт.

28

287-06-16420

BRACKET

SN: A73001-UP

6шт.

29

01010-80616

BOLT

SN: A73001-UP

3шт.

30

01643-30623

WASHER

SN: A73001-UP

3шт.

31

418-06-32710

WIRING HARNESS

SN: A73001-UP

1шт.

32

BRACKET ASS'Y,(SEE FIG. K0210-03A0)

SN: A73001-UP

-1шт.

33

418-54-32725

COVER

SN: A73001-UP

1шт.

Выбрано товаров: 33