Запчасти Komatsu WA250-6 КАПОТ, ДЕФЛЕКТОР ПЛАСТИНА (№7-) КАПОТ, С ПРЕФИЛЬТР, С ЗАЩИТА ОТ ВАНДАЛИЗМА

Схема запчастей Komatsu WA250-6 - КАПОТ, ДЕФЛЕКТОР ПЛАСТИНА (№7-) КАПОТ, С ПРЕФИЛЬТР, С ЗАЩИТА ОТ ВАНДАЛИЗМА
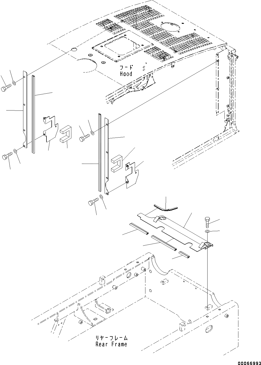
1
2
3
4
5
6
8
9
10
11
12
14
7
1
2
5
6
7
13
6
7
6
7
FIT
1:1
100%

Артикул

Название

Примечание

Количество

1

417-54-21850

Seal

SN: 75041-UP

2шт.

2

418-54-41910

Plate

SN: 75041-UP

2шт.

3

418-54-42450

Cover

SN: 75041-UP

1шт.

4

418-54-42470

Cover

SN: 75041-UP

1шт.

5

418-54-35331

Sheet

SN: 75041-UP

2шт.

6

01010-80816

Bolt

SN: 75041-UP

10шт.

7

01643-30823

Washer

SN: 75041-UP

10шт.

8

418-54-41391

Plate

SN: 75041-UP

1шт.

9

425-54-13930

Seal

SN: 75041-UP

1шт.

10

23S-54-27540

Seal

SN: 75041-UP

1шт.

11

425-54-13480

Seal

SN: 75041-UP

1шт.

12

01010-81020

Bolt

SN: 75041-UP

2шт.

13

01643-31032

Washer

SN: 75041-UP

2шт.

14

423-54-42870

Finisher

SN: 75041-UP

1шт.

Выбрано товаров: 0