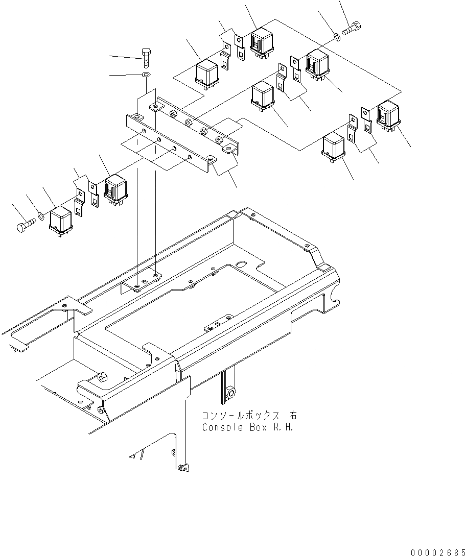
Запчасти Komatsu WA250PT-5 ПОЛ (ЭЛЕКТР.) (РЕЛЕ) K OPERATORґS ОБСТАНОВКА И СИСТЕМА УПРАВЛЕНИЯ

Схема запчастей Komatsu WA250PT-5 - ПОЛ (ЭЛЕКТР.) (РЕЛЕ) K OPERATORґS ОБСТАНОВКА И СИСТЕМА УПРАВЛЕНИЯ
6
4
7
8
4
2
3
5
8
4
4
4
8
8
4
4
7
1
6
FIT
1:1
100%

Артикул

Название

Примечание

Количество

1

418-54-32990

BRACKET

SN: H60051-UP

2шт.

2

01010-80616

BOLT

SN: H60051-UP

4шт.

3

01643-30623

WASHER

SN: H60051-UP

4шт.

4

569-06-61960

RELAY

SN: H60051-UP

15шт.

5

569-06-61970

RELAY

SN: H60051-UP

1шт.

6

01010-80616

BOLT

SN: H60051-UP

8шт.

7

01643-30623

WASHER

SN: H60051-UP

8шт.

8

287-06-16420

HOLDER

SN: H60051-UP

16шт.

Выбрано товаров: 0