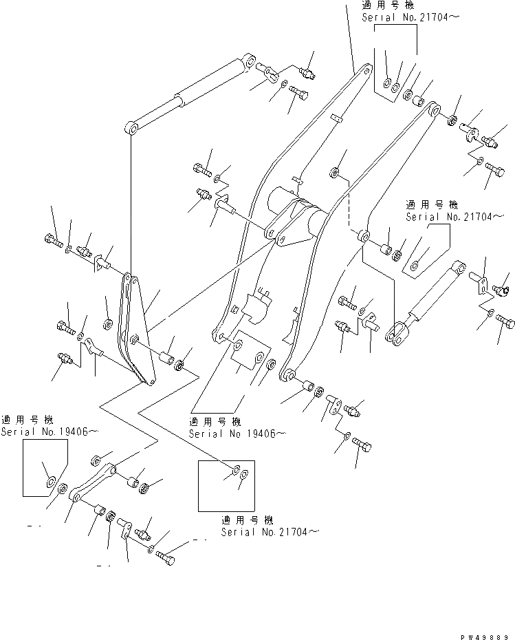
Запчасти Komatsu WA30-5 РУКОЯТЬ И КОЛЕНЧАТЫЙ РЫЧАГ (С ПЕРЕДН. НАВЕСН. ОБОРУД)(№-) РАБОЧЕЕ ОБОРУДОВАНИЕ

Схема запчастей Komatsu WA30-5 - РУКОЯТЬ И КОЛЕНЧАТЫЙ РЫЧАГ (С ПЕРЕДН. НАВЕСН. ОБОРУД)(№-) РАБОЧЕЕ ОБОРУДОВАНИЕ
1
2
2
3
3
3
3
4
5
5
6
7
8
9
9
10
11
11
11
12
12
12
13
14
15
15
16
17
17
18
18
18
19
19
19
20
20
20
21
22
23
23
24
25
25
26
27
27
28
28
28
29
29
29
30
30
30
31
31
31
31
32
33
34
FIT
1:1
100%

Артикул

Название

Примечание

Количество

|$4

362-877-0011

LIFT ARM ASS'Y

SN: 15874-UP

1шт.

|$5

362-877-0010

LIFT ARM ASS'Y

SN: 15001-15873

1шт.

|$6

362-N30-0010

LIFT ARM ASS'Y,(FOR SNOW FLIER)

SN: 15001-UP

1шт.

|$7

362-N90-0010

LIFT ARM ASS'Y,(FOR ROAD SWEEPER)

SN: 15001-UP

1шт.

1

0

ARM,LIFT

SN: 15874-UP

1шт.

1

0

ARM,LIFT

SN: 15001-15873

1шт.

1

0

ARM,LIFT (FOR SNOW FLIER)

SN: 15001-UP

1шт.

1

0

ARM,LIFT (FOR ROAD SWEEPER)

SN: 18604-UP

1шт.

1

0

ARM,LIFT (FOR ROAD SWEEPER)

SN: 15001-18603

1шт.

2

363-70-31710

BUSHING

SN: 15001-UP

4шт.

3

07145-00045

SEAL,DUST

SN: 15001-UP

8шт.

4

07143-10404

BUSHING

SN: 15001-UP

2шт.

5

07145-00040

SEAL,DUST

SN: 15001-UP

4шт.

6

363-70-31920

PIN

SN: 15001-UP

2шт.

7

363-70-31810

PIN

SN: 15001-UP

2шт.

8

363-70-31940

PIN

SN: 15001-UP

2шт.

9

07020-00000

FITTING,GREASE

SN: 15001-UP

4шт.

10

07020-00675

FITTING,GREASE

SN: 15001-UP

2шт.

11

01010-81220

BOLT

SN: 15001-UP

6шт.

12

175-54-34170

WASHER

SN: 15001-UP

6шт.

|$24

362-70-00220

BELLCRANK ASS'Y

SN: 15001-UP

1шт.

13

0

BELLCRANK

SN: 15001-UP

1шт.

14

42A-70-11860

BUSHING

SN: 15001-UP

1шт.

15

07145-00060

SEAL,DUST

SN: 15001-UP

2шт.

16

363-70-31930

PIN

SN: 15001-UP

1шт.

17

363-70-31820

PIN

SN: 15001-UP

2шт.

18

07020-00000

FITTING,GREASE

SN: 15001-UP

3шт.

19

01010-51220

BOLT

SN: 15001-UP

3шт.

20

175-54-34170

WASHER

SN: 15001-UP

3шт.

|$34

363-70-00230

LINK ASS'Y

SN: 15001-UP

1шт.

21

0

LINK

SN: 15001-UP

1шт.

22

363-70-31710

BUSHING

SN: 15001-UP

1шт.

23

07145-00045

SEAL,DUST

SN: 15001-UP

2шт.

24

07143-10404

BUSHING

SN: 15001-UP

1шт.

25

07145-00040

SEAL,DUST

SN: 15001-UP

2шт.

26

363-70-31820

PIN

SN: 17840-UP

1шт.

26

0

PIN

SN: 15001-17839

1шт.

27

363-70-31910

PIN

SN: 15001-UP

3шт.

28

07020-00000

FITTING,GREASE

SN: 15001-UP

4шт.

29

01010-81220

BOLT

SN: 15001-UP

4шт.

30

175-54-34170

WASHER

SN: 15001-UP

4шт.

31

42A-70-21710

SPACER, 2.0MM

SN: 21704-UP

5шт.

31

42A-70-21710

SPACER, 2.0MM

SN: 19406-21703

3шт.

32

20S-70-81750

SPACER, 0.5MM

SN: 21704-UP

10шт.

33

21Y-70-14770

SPACER, 1.0MM

SN: 21704-UP

2шт.

34

363-70-31890

SPACER, 0.5MM

SN: 21704-UP

2шт.

Выбрано товаров: 0