Запчасти Komatsu WA300-3A-SN УПРАВЛ-Е ТОРМОЗОМ (КЛАПАН ВЫКЛ. СТОЯНОЧН. ТОРМОЗА)(№-) КАБИНА ОПЕРАТОРА И СИСТЕМА УПРАВЛЕНИЯ

Схема запчастей Komatsu WA300-3A-SN - УПРАВЛ-Е ТОРМОЗОМ (КЛАПАН ВЫКЛ. СТОЯНОЧН. ТОРМОЗА)(№-) КАБИНА ОПЕРАТОРА И СИСТЕМА УПРАВЛЕНИЯ
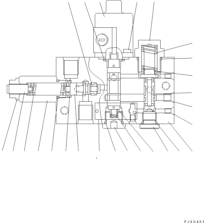
1
2
3
4
5
6
7
8
9
10
11
12
13
14
15
16
17
18
19
20
21
22
23
24
25
26
27
FIT
1:1
100%

Артикул

Название

Примечание

Количество

|1

419-43-27913

VALVE ASS'Y

SN: 55001-UP

1шт.

1

0

BODY

SN: 55001-UP

1шт.

2

0

SPOOL

SN: 55001-UP

1шт.

3

0

SPOOL

SN: 55001-UP

1шт.

4

0

SPOOL

SN: 55001-UP

1шт.

5

UC1100357559

SEAT,SPRING

SN: 55001-UP

1шт.

6

UC1100357449

PLUG

SN: 55001-UP

1шт.

7

0

GUIDE

SN: 55001-UP

1шт.

8

0

SCREW,ADJUST

SN: 55001-UP

1шт.

9

0

NUT

SN: 55001-UP

1шт.

10

UC1100357458

PLUG

SN: 55001-UP

1шт.

11

UC1198273603

PLUG

SN: 55001-UP

1шт.

12

0

PLUG

SN: 55001-UP

2шт.

13

0

PLUG

SN: 55001-UP

1шт.

14

UC1100156089

SPRING

SN: 55001-UP

1шт.

15

UC1100357577

SPRING

SN: 55001-UP

1шт.

16

0

SPRING

SN: 55001-UP

1шт.

17

UC1301169009

O-RING

SN: 55001-UP

1шт.

18

UC1301181009

O-RING

SN: 55001-UP

1шт.

19

UC1301186004

O-RING

SN: 55001-UP

1шт.

20

UC1301193002

O-RING

SN: 55001-UP

1шт.

21

UC1300046006

O-RING

SN: 55001-UP

1шт.

22

UC1301502002

BOLT

SN: 55001-UP

2шт.

23

UC1100415114

SOLENOID

SN: 55001-UP

1шт.

24

0

NAME PLATE

SN: 55001-UP

1шт.

25

UC1303024274

SCREW

SN: 55001-UP

2шт.

26

0

SHIM

SN: 55001-UP

1шт.

27

UC1100463847

SEAT

SN: 55001-UP

1шт.

Выбрано товаров: 0