Запчасти Komatsu WA320-5 КОРПУС АККУМУЛЯТОРА ЭЛЕКТРИКА

Схема запчастей Komatsu WA320-5 - КОРПУС АККУМУЛЯТОРА ЭЛЕКТРИКА
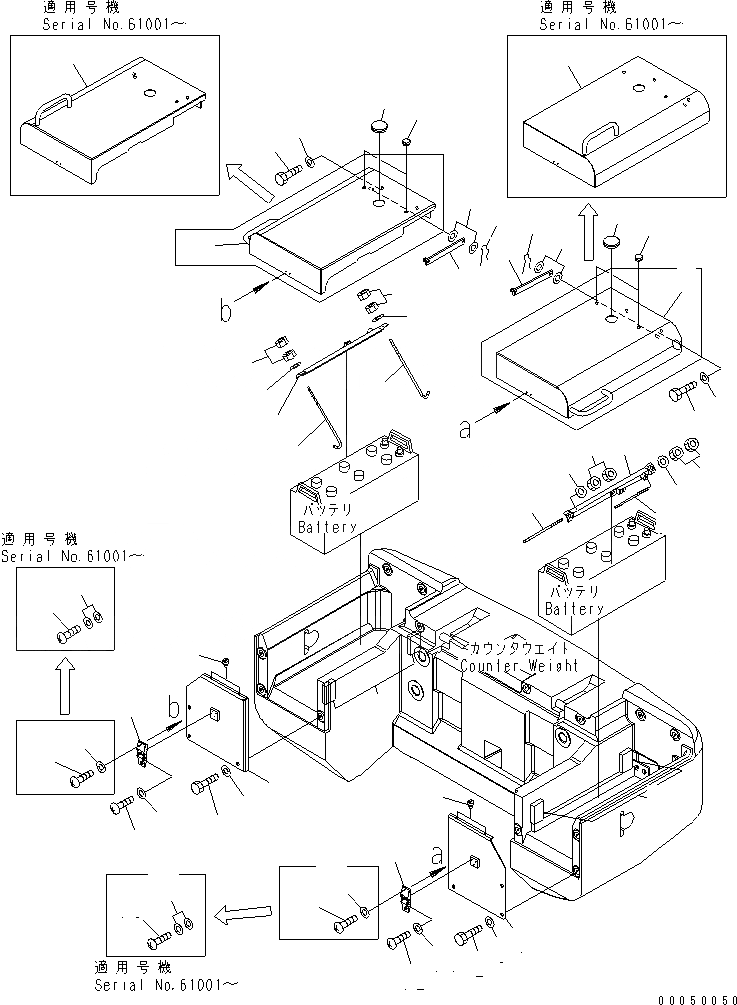
1
2
3
4
5
5
6
7
8
9
10
11
12
13
13
14
14
15
16
17
18
19
20
21
22
22
23
24
25
26
27
28
29
30
30
31
31
32
33
34
35
36
37
37
37
37
38
38
38
38
39
39
39
39
40
40
FIT
1:1
100%

Артикул

Название

Примечание

Количество

1

419-06-31114

COVER,L.H.

SN: 60001-UP

1шт.

2

01010-81020

BOLT

SN: 60001-UP

3шт.

3

01643-31032

WASHER

SN: 60001-UP

3шт.

4

415-54-11980

CUSHION

SN: 60001-UP

2шт.

5

419-06-31950

COVER

SN: 61001-UP

1шт.

5

419-06-31521

COVER

SN: 60001-61000

1шт.

6

01010-81020

BOLT

SN: 60001-UP

2шт.

7

01643-31032

WASHER

SN: 60001-UP

2шт.

8

421-06-24230

BAR

SN: 60001-UP

1шт.

9

01641-20812

WASHER

SN: 60001-UP

2шт.

10

04052-10833

PIN,SNAP

SN: 60001-UP

1шт.

11

421-09-12322

HOLDER

SN: 60001-UP

1шт.

12

01220-40408

SCREW

SN: 60001-UP

3шт.

13

01220-40410

SCREW

SN: 60001-UP

2шт.

14

01641-20405

WASHER

SN: 61001-UP

3шт.

14

01641-20405

WASHER

SN: 60001-61000

5шт.

15

01640-20408

WASHER

SN: 61001-UP

4шт.

16

09415-03614

CAP

SN: 60001-UP

1шт.

17

09415-00706

CAP

SN: 60001-UP

2шт.

18

419-06-31124

COVER,R.H.

SN: 60001-UP

1шт.

19

01010-81020

BOLT

SN: 60001-UP

3шт.

20

01643-31032

WASHER

SN: 60001-UP

3шт.

21

415-54-11980

CUSHION

SN: 60001-UP

2шт.

22

419-06-31960

COVER

SN: 61001-UP

1шт.

22

419-06-31531

COVER

SN: 60001-61000

1шт.

23

01010-81020

BOLT

SN: 60001-UP

2шт.

24

01643-31032

WASHER

SN: 60001-UP

2шт.

25

421-06-24230

BAR

SN: 60001-UP

1шт.

26

01641-20812

WASHER

SN: 60001-UP

2шт.

27

04052-10833

PIN,SNAP

SN: 60001-UP

1шт.

28

421-09-12322

HOLDER

SN: 60001-UP

1шт.

29

01220-40408

SCREW

SN: 60001-UP

3шт.

30

01220-40410

SCREW

SN: 60001-UP

2шт.

31

01641-20405

WASHER

SN: 61001-UP

3шт.

31

01641-20405

WASHER

SN: 60001-61000

5шт.

32

01640-20408

WASHER

SN: 61001-UP

4шт.

33

09415-03614

CAP

SN: 60001-UP

1шт.

34

09415-00706

CAP

SN: 60001-UP

2шт.

35

419-06-31152

HOLDER

SN: 60001-UP

1шт.

36

419-06-31162

HOLDER

SN: 60001-UP

1шт.

37

419-06-31170

ROD

SN: 60001-UP

4шт.

38

01643-30823

WASHER

SN: 60001-UP

4шт.

39

01580-10806

NUT

SN: 60001-UP

8шт.

40

419-06-31370

RUBBER

SN: 60001-UP

4шт.

Выбрано товаров: 44