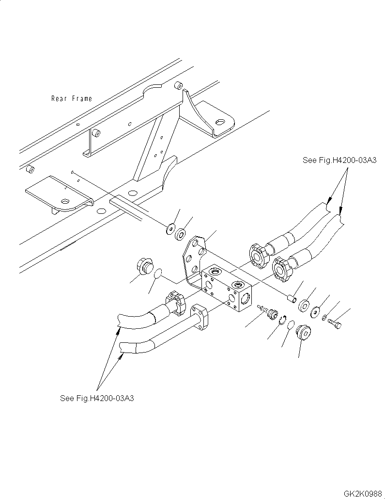
Запчасти Komatsu WA320-5 ГИДРОЛИНИЯ (BYPASS КЛАПАН) H ГИДРАВЛИКА

Схема запчастей Komatsu WA320-5 - ГИДРОЛИНИЯ (BYPASS КЛАПАН) H ГИДРАВЛИКА
4
6
1
12
13
8
9
11
10
7
5
4
3
2
FIT
1:1
100%

Артикул

Название

Примечание

Количество

1

419-62-33263

BLOCK

SN: H50051-UP

1шт.

2

01010-81050

BOLT

SN: H50051-UP

3шт.

3

01643-31032

WASHER

SN: H50051-UP

3шт.

4

415-64-13120

WASHER

SN: H50051-UP

6шт.

5

419-43-17930

CUSHION

SN: H50051-UP

3шт.

6

415-64-13130

CUSHION

SN: H50051-UP

3шт.

7

417-62-14130

SPACER

SN: H50051-UP

3шт.

8

419-62-34380

VALVE ASSEMBLY

SN: H50051-UP

1шт.

9

04065-03212

RING, SNAP

SN: H50051-UP

2шт.

10

07040-13316

PLUG

SN: H50051-UP

1шт.

11

07002-13334

O-RING

SN: H50051-UP

1шт.

12

07041-13612

PLUG

SN: H50051-UP

1шт.

13

07002-13634

O-RING

SN: H50051-UP

1шт.

Выбрано товаров: 13