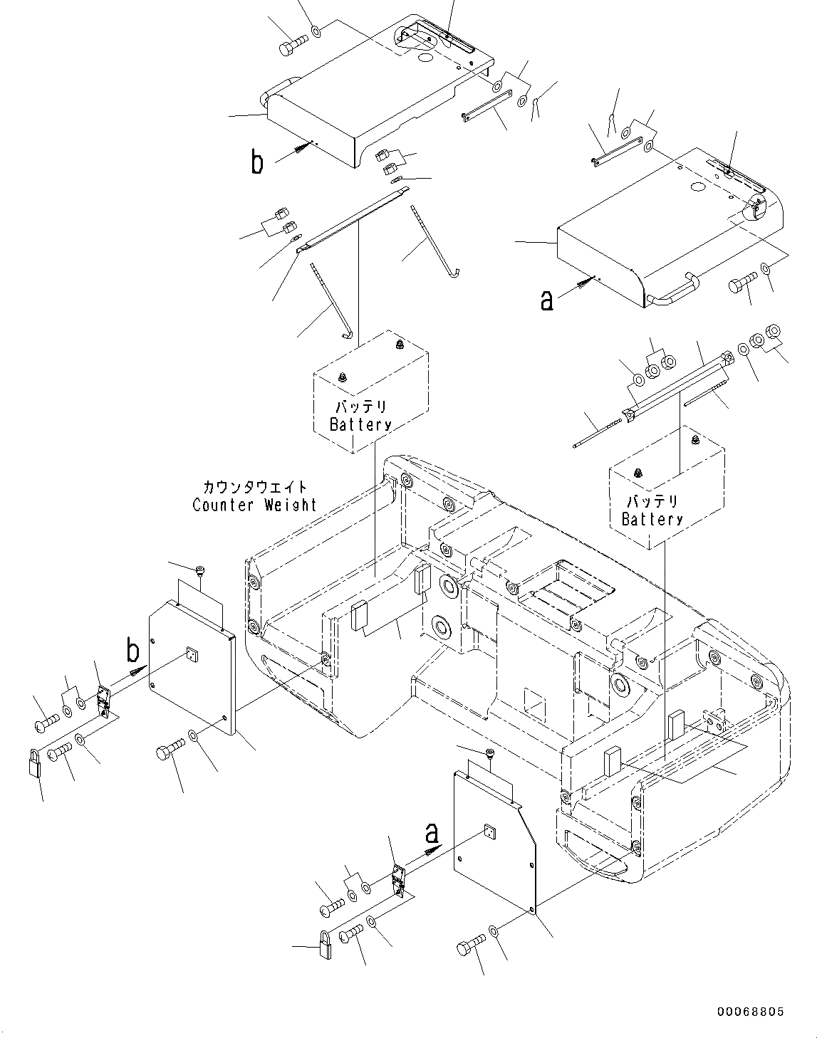
Запчасти Komatsu WA320-6 АККУМУЛЯТОРН. ОТСЕК, КОРПУС АККУМУЛЯТОРА (№79-) АККУМУЛЯТОРН. ОТСЕК, С КРЫШКА МАСЛОНАЛИВНОГО ПАТРУБКА БЛОКИРОВКА И КРЫШКИБЛОКИР., БЕЗ АККУМУЛЯТОР DISCONNECT ПЕРЕКЛЮЧАТЕЛЬ

Схема запчастей Komatsu WA320-6 - АККУМУЛЯТОРН. ОТСЕК, КОРПУС АККУМУЛЯТОРА (№79-) АККУМУЛЯТОРН. ОТСЕК, С КРЫШКА МАСЛОНАЛИВНОГО ПАТРУБКА БЛОКИРОВКА И КРЫШКИБЛОКИР., БЕЗ АККУМУЛЯТОР DISCONNECT ПЕРЕКЛЮЧАТЕЛЬ
38
37
38
36
38
7
8
15
5
9
10
32
35
36
37
4
3
2
1
36
38
37
11
12
13
14
16
17
18
19
20
21
24
25
26
27
28
29
30
34
35
36
37
22
23
6
31
33
39
39
FIT
1:1
100%

Артикул

Название

Примечание

Количество

1

419-06-31114

Cover,L.H.

SN: 70291-UP

1шт.

2

01010-81020

Bolt

SN: 70291-UP

3шт.

3

01643-31032

Washer

SN: 70291-UP

3шт.

4

415-54-11980

Cushion

SN: 70291-UP

2шт.

5

419-06-31521

Cover,L.H.

SN: 70291-UP

1шт.

6

416-09-12230

Hinge

SN: 70291-UP

1шт.

7

01010-81020

Bolt

SN: 70291-UP

2шт.

8

01643-31032

Washer

SN: 70291-UP

2шт.

9

421-06-24230

Bar

SN: 70291-UP

1шт.

10

01641-20812

Washer

SN: 70291-UP

2шт.

11

04050-12015

Pin, Cotter

SN: 70291-UP

1шт.

12

421-09-12322

Holder

SN: 70291-UP

1шт.

13

01220-40408

Screw

SN: 70291-UP

3шт.

14

01220-40410

Screw

SN: 70291-UP

2шт.

15

01641-20405

Washer

SN: 70291-UP

3шт.

16

01640-20408

Washer

SN: 70291-UP

4шт.

17

418-979-A110

Lock

SN: 70291-UP

1шт.

18

419-06-31124

Cover,R.H.

SN: 70291-UP

1шт.

19

01010-81020

Bolt

SN: 70291-UP

3шт.

20

01643-31032

Washer

SN: 70291-UP

3шт.

21

415-54-11980

Cushion

SN: 70291-UP

2шт.

22

419-06-31531

Cover,R.H.

SN: 70291-UP

1шт.

23

416-09-12230

Hinge

SN: 70291-UP

1шт.

24

01010-81020

Bolt

SN: 70291-UP

2шт.

25

01643-31032

Washer

SN: 70291-UP

2шт.

26

421-06-24230

Bar

SN: 70291-UP

1шт.

27

01641-20812

Washer

SN: 70291-UP

2шт.

28

04050-12015

Pin, Cotter

SN: 70291-UP

1шт.

29

421-09-12322

Holder

SN: 70291-UP

1шт.

30

01220-40408

Screw

SN: 70291-UP

3шт.

31

01220-40410

Screw

SN: 70291-UP

2шт.

32

01641-20405

Washer

SN: 70291-UP

3шт.

33

01640-20408

Washer

SN: 70291-UP

4шт.

34

418-979-A110

Lock

SN: 70291-UP

1шт.

35

419-06-31250

Holder

SN: 70291-UP

2шт.

36

419-06-31170

Rod

SN: 70291-UP

4шт.

37

01643-30823

Washer

SN: 70291-UP

4шт.

38

01580-10806

Nut

SN: 70291-UP

8шт.

39

419-06-31370

Rubber

SN: 70291-UP

4шт.

Выбрано товаров: 39