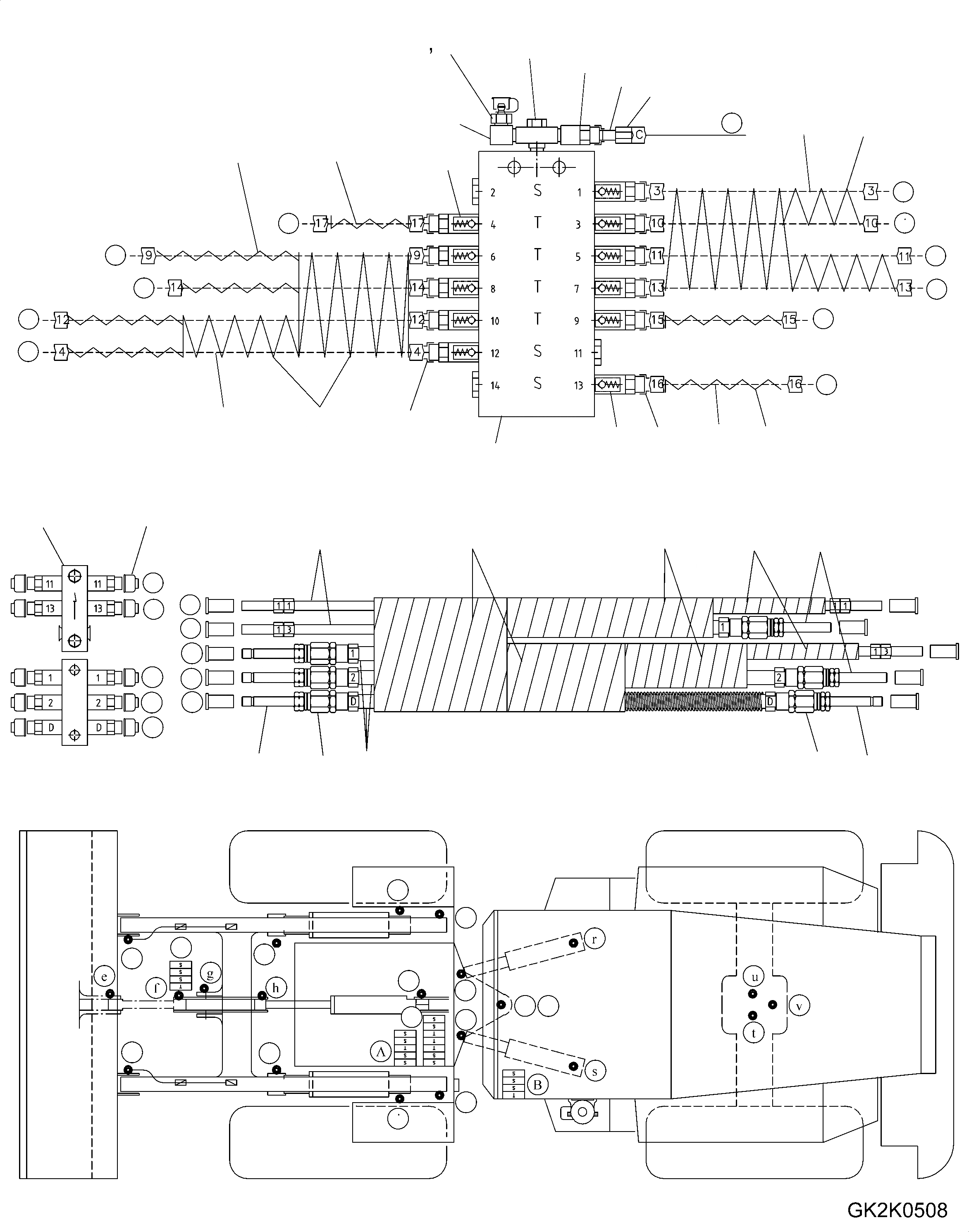
Запчасти Komatsu WA320PZ-6 CENTRAL СМАЗКА СИСТЕМА (ПЕРЕДН. РАМА) (ФИДЕР) (/) РАМА И ITS КОМПОНЕНТЫ

Схема запчастей Komatsu WA320PZ-6 - CENTRAL СМАЗКА СИСТЕМА (ПЕРЕДН. РАМА) (ФИДЕР) (/) РАМА И ITS КОМПОНЕНТЫ
5
6
3
7
12
11
9
10
10
9
8
2
1
8
10
9
10
9
4
2
13
14
15
22
21
20
18
17
19
16
19
17
k
k
m
m
a
a
b
b
D
D
a
b
D
m
k
q
q
i
n
i
n
l
d
l
d
c
j
c
j
C
C
k
m
o
p
p
o
FIT
1:1
100%

Артикул

Название

Примечание

Количество

|$1

0

FEEDER ASSEMBLY

SN: H00051-UP

1шт.

1

419-09-H3800

FEEDER, FRONT FRAME

SN: H00051-UP

1шт.

2

42W-09-H4650

VALVE

SN: H00051-UP

11шт.

3

421-09-H4520

UNION

SN: H00051-UP

1шт.

4

425-09-H0240

ELBOW

SN: H00051-UP

1шт.

5

421-09-H3870

LUBRICATION NIPPLE

SN: H00051-UP

1шт.

6

42W-09-H3350

CAP

SN: H00051-UP

1шт.

7

419-09-H2780

UNION

SN: H00051-UP

1шт.

8

42W-09-H2940

SAFETY CAP

SN: H00051-UP

12шт.

9

42W-09-H0P06

HOSE, 5M

SN: H00051-UP

-26шт.

|$11

42W-09-H0P07

HOSE, 10M

SN: H00051-UP

-26шт.

|$12

42W-09-H0P08

HOSE, 25M

SN: H00051-UP

-26шт.

10

42W-09-H0P11

HOSE PROTECTOR, 10M, 10MM

SN: H00051-UP

-26шт.

|$14

42W-09-H0P12

HOSE PROTECTOR, 10M, 16MM

SN: H00051-UP

-26шт.

11

423-00-H1920

BUSHING

SN: H00051-UP

1шт.

12

42T-09-H3810

TUBE

SN: H00051-UP

1шт.

13

419-S95-H520

BLOCK

SN: H00051-UP

1шт.

14

42W-09-H2940

SAFETY CAP

SN: H00051-UP

10шт.

15

42W-09-H0P06

HOSE, 5M

SN: H00051-UP

-26шт.

|$20

42W-09-H0P07

HOSE, 10M

SN: H00051-UP

-26шт.

|$21

42W-09-H0P08

HOSE, 25M

SN: H00051-UP

-26шт.

16

42W-09-H0P00

HOSE, 5M

SN: H00051-UP

-26шт.

|$23

42W-09-H0P01

HOSE, 10M

SN: H00051-UP

-26шт.

|$24

42W-09-H0P02

HOSE, 25M

SN: H00051-UP

-26шт.

17

42T-09-H3810

TUBE

SN: H00051-UP

4шт.

18

425-09-H0260

TUBE

SN: H00051-UP

2шт.

19

423-00-H1920

BUSHING

SN: H00051-UP

6шт.

20

42W-09-H0P09

COIL, 5M

SN: H00051-UP

-26шт.

21

42W-09-H0P11

HOSE PROTECTOR, 10M, 10MM

SN: H00051-UP

-26шт.

22

42W-09-H0P12

HOSE PROTECTOR, 10M, 16MM

SN: H00051-UP

-26шт.

Выбрано товаров: 30