Запчасти Komatsu WA320PZ-6 CENTRAL СМАЗКА СИСТЕМА (СТРЕЛА И КОЛЕНЧАТЫЙ РЫЧАГ) (ФИДЕР) (/) РАМА И ITS КОМПОНЕНТЫ

Схема запчастей Komatsu WA320PZ-6 - CENTRAL СМАЗКА СИСТЕМА (СТРЕЛА И КОЛЕНЧАТЫЙ РЫЧАГ) (ФИДЕР) (/) РАМА И ITS КОМПОНЕНТЫ
16
14
12
13
14
15
2
1
11
15
14
12
13
14
15
17
7
8
10
9
5
6
11
3
4
h
g
f
e
e
f
h
g
FIT
1:1
100%

Артикул

Название

Примечание

Количество

|$1

0

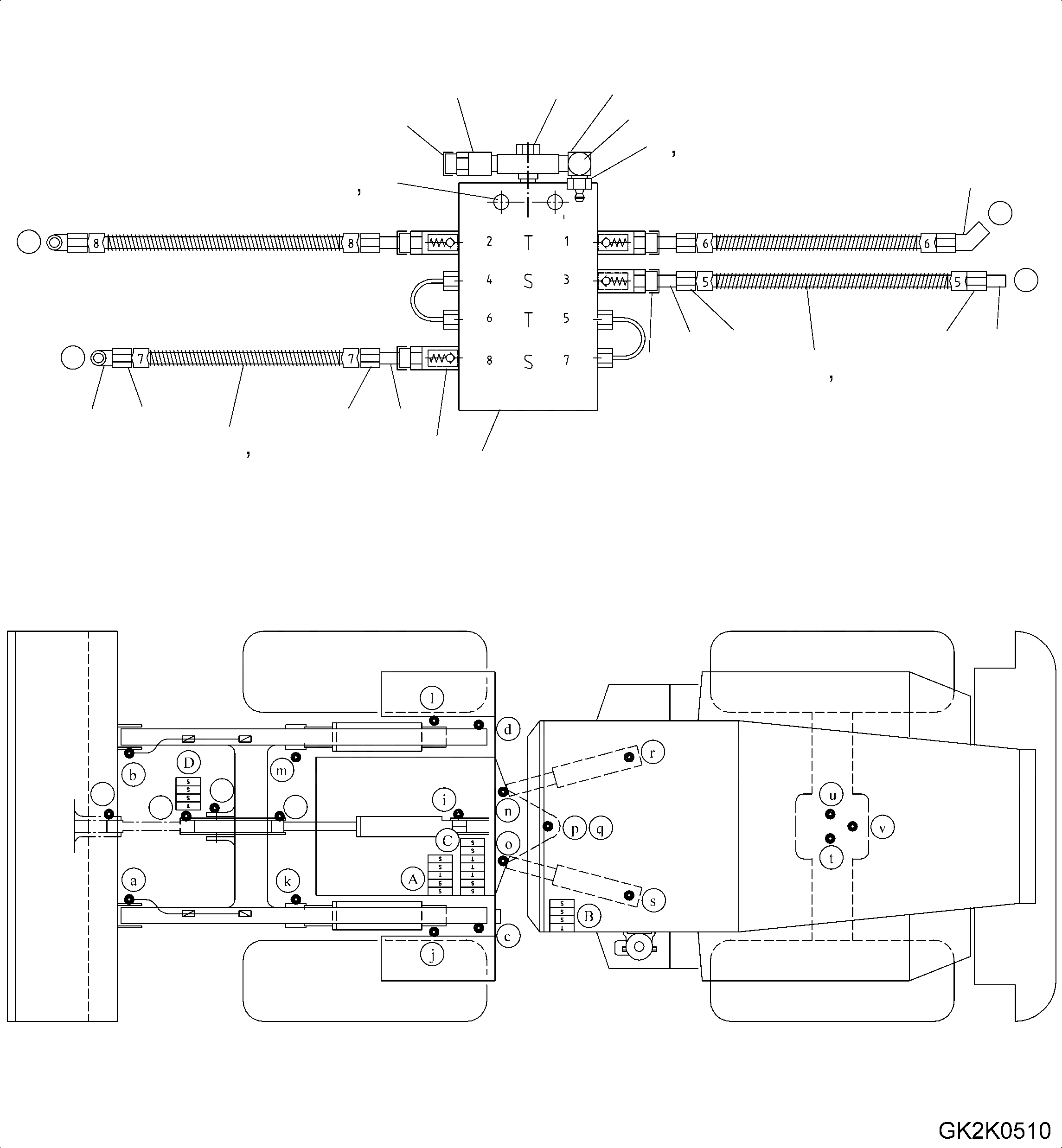
FEEDER ASSEMBLY

SN: H00051-UP

1шт.

1

419-09-H2620

DISTRIBUTOR

SN: H00051-UP

1шт.

2

42W-09-H4650

VALVE

SN: H00051-UP

4шт.

3

419-09-H3500

SCREW

SN: H00051-UP

2шт.

4

419-09-H2860

SCREW LOCKING DEVICE

SN: H00051-UP

2шт.

5

421-09-H4520

UNION

SN: H00051-UP

1шт.

6

419-09-H2780

UNION

SN: H00051-UP

1шт.

7

421-09-H3870

LUBRICATION NIPPLE

SN: H00051-UP

1шт.

8

42W-09-H3350

CAP

SN: H00051-UP

1шт.

9

(NOT USED)

SN: H00051-UP

-1шт.

10

425-09-H0240

ELBOW

SN: H00051-UP

1шт.

11

42W-09-H2940

SAFETY CAP

SN: H00051-UP

5шт.

12

42W-09-H0P00

HOSE, 5M

SN: H00051-UP

-26шт.

|$14

42W-09-H0P01

HOSE, 10M

SN: H00051-UP

-26шт.

|$15

42W-09-H0P02

HOSE, 25M

SN: H00051-UP

-26шт.

13

42W-09-H0P09

COIL, 5M

SN: H00051-UP

-26шт.

14

423-00-H1920

BUSHING

SN: H00051-UP

8шт.

15

42T-09-H3810

TUBE

SN: H00051-UP

5шт.

16

423-00-H0P12

TUBE, 90°

SN: H00051-UP

2шт.

17

42T-09-H4090

TUBE, 45°

SN: H00051-UP

1шт.

Выбрано товаров: 20