Запчасти Komatsu WA350-3-H РАДИАТОР (РАДИАТОР ЧАСТИ И ЭЛЕМЕНТЫ КРЕПЛЕНИЯ) СИСТЕМА ОХЛАЖДЕНИЯ

Схема запчастей Komatsu WA350-3-H - РАДИАТОР (РАДИАТОР ЧАСТИ И ЭЛЕМЕНТЫ КРЕПЛЕНИЯ) СИСТЕМА ОХЛАЖДЕНИЯ
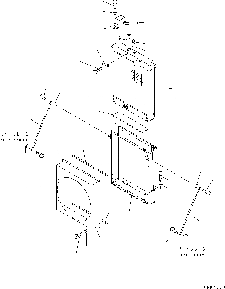
1
2
3
4
4
5
6
7
7
8
9
10
11
12
13
14
15
16
17
18
19
19
20
21
22
22
23
23
FIT
1:1
100%

Артикул

Название

Примечание

Количество

|1

423-03-21101

RADIATOR ASS'Y

SN: 63001-UP

1шт.

1

423-03-21111

CORE ASS'Y

SN: 63001-UP

1шт.

2

423-03-21120

FRAME

SN: 63001-UP

1шт.

3

423-03-11150

CLAMP

SN: 63001-UP

2шт.

4

424-03-11160

SHIM¤ 0.6MM

SN: 63001-UP

26шт.

5

421-03-11470

SHEET

SN: 63001-UP

1шт.

6

423-03-21130

SHROUD

SN: 63001-UP

1шт.

7

421-03-11211

PACKING

SN: 63001-UP

2шт.

8

23S-03-11150

CAP ASS'Y

SN: 63001-UP

1шт.

9

01010-80820

BOLT

SN: 63001-UP

12шт.

10

01602-20825

WASHER,SPRING

SN: 63001-UP

12шт.

11

01010-81016

BOLT

SN: 63001-UP

8шт.

12

01643-31032

WASHER

SN: 63001-UP

8шт.

13

7861-92-4500

SENSOR,WATER LEVEL

SN: 63001-UP

1шт.

14

07002-23634

O-RING

SN: 63001-UP

1шт.

15

08053-01512

CLIP

SN: 63001-UP

1шт.

16

01435-01016

BOLT

SN: 63001-UP

1шт.

17

01010-81445

BOLT

SN: 63001-UP

2шт.

18

01643-31445

WASHER

SN: 63001-UP

2шт.

19

01435-01235

BOLT

SN: 63001-UP

2шт.

20

421-03-23150

STAY,L.H.

SN: 63001-UP

1шт.

21

423-03-23220

STAY,R.H.

SN: 63001-UP

1шт.

22

01435-01235

BOLT

SN: 63001-UP

2шт.

23

01643-31232

WASHER

SN: 63001-UP

2шт.

Выбрано товаров: 24