Запчасти Komatsu WA350-3-H ПОЛ (ПРАВ. КОНСОЛЬН. БЛОК) (С 4-Х СЕКЦИОНН. УПРАВЛЯЮЩ. КЛАПАН)(№-) КАБИНА ОПЕРАТОРА И СИСТЕМА УПРАВЛЕНИЯ

Схема запчастей Komatsu WA350-3-H - ПОЛ (ПРАВ. КОНСОЛЬН. БЛОК) (С 4-Х СЕКЦИОНН. УПРАВЛЯЮЩ. КЛАПАН)(№-) КАБИНА ОПЕРАТОРА И СИСТЕМА УПРАВЛЕНИЯ
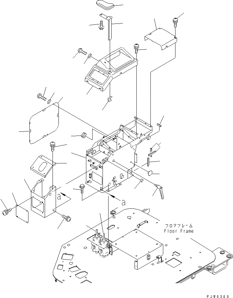
1
2
3
4
4
5
6
7
8
9
10
11
12
13
14
15
16
17
18
19
20
20
21
22
23
24
25
26
27
28
29
FIT
1:1
100%

Артикул

Название

Примечание

Количество

1

423-V88-2731

BOX,CONSOLE¤ R.H.

SN: 64001-UP

1шт.

|1

01571-01016

SEAT (WELDED)

SN: 63001-UP

1шт.

|1

01573-20205

SEAT (WELDED)

SN: 63001-UP

1шт.

|1

01573-20210

SEAT (WELDED)

SN: 63001-UP

1шт.

|1

423-V88-2280

PLATE (WELDED)

SN: 63001-UP

4шт.

2

423-V88-2291

COVER

SN: 63001-UP

1шт.

3

423-V88-2390

COVER

SN: 63001-UP

1шт.

4

421-09-21410

SCREW

SN: 63001-UP

6шт.

5

423-V88-2310

COVER

SN: 63001-UP

1шт.

6

421-09-21410

SCREW

SN: 63001-UP

4шт.

7

421-54-22840

COVER,R.H.

SN: 63001-UP

1шт.

8

421-09-21410

SCREW

SN: 63001-UP

5шт.

9

01220-70616

SCREW

SN: 63001-UP

1шт.

10

01642-40608

WASHER

SN: 63001-UP

1шт.

11

421-54-22850

COVER

SN: 63001-UP

1шт.

12

421-09-21410

SCREW

SN: 63001-UP

4шт.

13

363-54-32220

PLUG

SN: 63001-UP

1шт.

14

09415-01008

CAP

SN: 63001-UP

1шт.

15

01435-01220

BOLT

SN: 63001-UP

4шт.

16

419-54-22920

PLATE

SN: 64001-UP

1шт.

17

421-09-21420

SHEET

SN: 63001-UP

4шт.

18

01220-70616

SCREW

SN: 63001-UP

4шт.

19

01642-40608

WASHER

SN: 63001-UP

4шт.

20

421-54-22520

FINISHER

SN: 63001-UP

3шт.

21

421-54-22970

PROTECTOR

SN: 63001-UP

1шт.

22

421-09-21450

PLUG

SN: 63001-UP

1шт.

23

421-54-22870

PAD ASS'Y

SN: 63001-UP

1шт.

24

421-54-23420

BRACKET

SN: 64001-UP

1шт.

25

426-54-22190

PLATE

SN: 64001-UP

1шт.

26

01435-00616

BOLT

SN: 63001-UP

2шт.

27

419-54-22930

LEVER

SN: 64001-UP

1шт.

28

702-16-42005

VALVE ASS'Y,P.P.C.

SN: 63001-UP

1шт.

29

702-16-34003

VALVE ASS'Y,P.P.C.

SN: 63001-UP

1шт.

Выбрано товаров: 33