Запчасти Komatsu WA350-3-X МЕХАНИЗМ ОСТАНОВКИ СТРЕЛЫ И КОВШ ПОЗИЦИОНЕР(№-) УПРАВЛ-Е РАБОЧИМ ОБОРУДОВАНИЕМ

Схема запчастей Komatsu WA350-3-X - МЕХАНИЗМ ОСТАНОВКИ СТРЕЛЫ И КОВШ ПОЗИЦИОНЕР(№-) УПРАВЛ-Е РАБОЧИМ ОБОРУДОВАНИЕМ
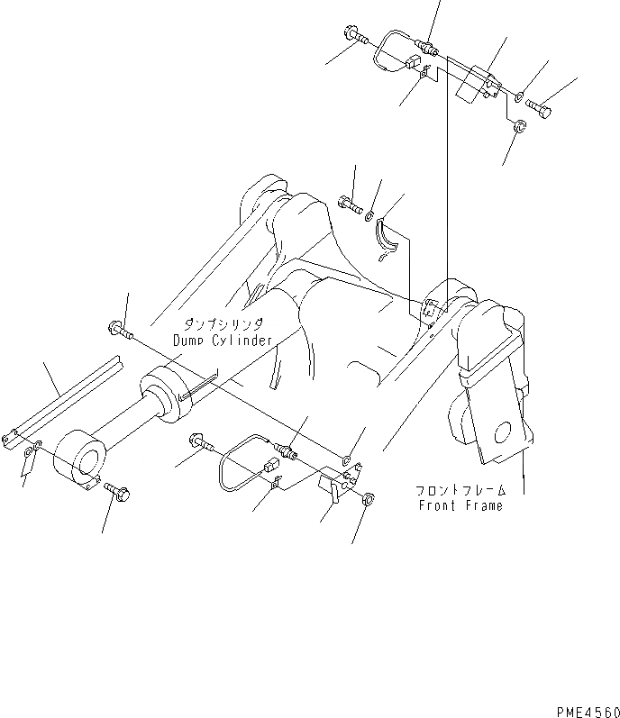
1
2
2
3
4
5
6
7
8
9
10
11
11
12
13
14
15
16
17
18
FIT
1:1
100%

Артикул

Название

Примечание

Количество

1

421-43-19140

PLATE

SN: 60001-UP

1шт.

2

363-06-31121

SWITCH,BOOM KICK OUT

SN: 60144-UP

1шт.

|2

0

SWITCH,BOOM KICK OUT

SN: 60001-60143

1шт.

3

01010-81225

BOLT

SN: 60001-UP

2шт.

4

01643-31232

WASHER

SN: 60001-UP

2шт.

5

421-43-19131

PLATE

SN: 60001-UP

1шт.

6

01010-81220

BOLT

SN: 60001-UP

2шт.

7

01643-31232

WASHER

SN: 60001-UP

2шт.

8

08053-01512

CLIP

SN: .-UP

1шт.

|8

08053-01510

CLIP

SN: 60001-.

1шт.

9

01435-01016

BOLT

SN: 60001-UP

1шт.

10

423-43-19150

PLATE

SN: 60001-UP

1шт.

11

363-06-31121

SWITCH,BUCKET POSITIONER

SN: 60144-UP

1шт.

|11

0

SWITCH,BUCKET POSITIONER

SN: 60001-60143

1шт.

12

01435-01235

BOLT

SN: 60001-UP

2шт.

13

01642-21216

WASHER

SN: 60001-UP

1шт.

|13

01643-31232

WASHER

SN: 60001-UP

1шт.

14

08053-01512

CLIP

SN: .-UP

1шт.

|14

08053-01510

CLIP

SN: 60001-.

1шт.

15

01435-01020

BOLT

SN: 60001-UP

1шт.

16

423-43-19160

ANGLE

SN: 60001-UP

1шт.

17

01435-01235

BOLT

SN: 60001-UP

2шт.

18

6113-63-1630

SHIM¤ 0.2MM

SN: 60001-UP

2шт.

|18

6113-63-1640

SHIM¤ 0.5MM

SN: 60001-UP

1шт.

Выбрано товаров: 24