Запчасти Komatsu WA350-3A-SN ПОЛ (ПРАВ. КОНСОЛЬН. БЛОК) (С 3-Х СЕКЦ. КОНТР. КЛАПАНОМ)(№-) КАБИНА ОПЕРАТОРА И СИСТЕМА УПРАВЛЕНИЯ

Схема запчастей Komatsu WA350-3A-SN - ПОЛ (ПРАВ. КОНСОЛЬН. БЛОК) (С 3-Х СЕКЦ. КОНТР. КЛАПАНОМ)(№-) КАБИНА ОПЕРАТОРА И СИСТЕМА УПРАВЛЕНИЯ
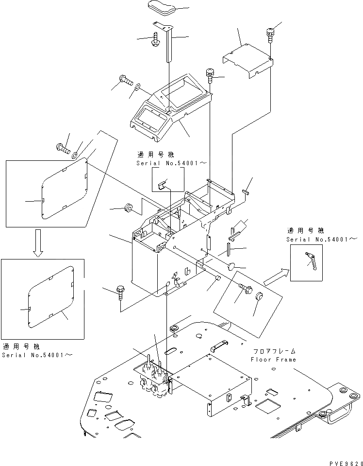
1
2
3
4
5
6
7
8
9
10
11
11
12
12
13
14
15
15
16
17
18
19
19A
20
21
21
22
23
24
FIT
1:1
100%

Артикул

Название

Примечание

Количество

1

419-54-22910

BOX,R.H.

SN: 54001-55000

1шт.

|1

421-54-22710

BOX,R.H.

SN: 53001-53999

1шт.

2

421-54-22840

COVER,R.H.

SN: 53001-55000

1шт.

3

421-09-21410

SCREW

SN: 53001-55000

5шт.

4

01220-70616

SCREW

SN: 53001-55000

1шт.

5

01642-40608

WASHER

SN: 53001-55000

1шт.

6

421-54-22850

COVER

SN: 53001-55000

1шт.

7

421-09-21410

SCREW

SN: 53001-55000

4шт.

8

363-54-32220

PLUG

SN: 53001-55000

1шт.

9

09415-01008

CAP

SN: 53001-55000

1шт.

10

01435-01220

BOLT

SN: 53001-55000

4шт.

11

419-54-22920

PLATE

SN: 54001-55000

1шт.

|11

421-54-22720

PLATE

SN: 53001-53999

1шт.

12

421-09-21420

SHEET

SN: 53001-55000

4шт.

13

01220-70616

SCREW

SN: 53001-55000

4шт.

14

01642-40608

WASHER

SN: 53001-55000

4шт.

15

421-54-22520

FINISHER

SN: 53001-55000

3шт.

16

421-54-22970

PROTECTOR

SN: 53001-55000

1шт.

17

421-09-21450

PLUG

SN: 53001-55000

1шт.

18

421-54-22870

PAD ASS'Y

SN: 53001-55000

1шт.

19

421-54-23420

BRACKET

SN: 54001-55000

1шт.

|19

421-54-22880

BRACKET

SN: 53001-53999

1шт.

19A

426-54-22190

PLATE

SN: 54001-55000

1шт.

20

01435-00616

BOLT

SN: 53001-55000

2шт.

21

419-54-22930

LEVER

SN: 54001-55000

1шт.

|21

01435-01035

BOLT

SN: 53001-53999

1шт.

22

363-54-31450

CAP,BOLT

SN: 53001-53999

1шт.

23

702-16-42005

VALVE ASS'Y,P.P.C.

SN: 53001-55000

1шт.

24

702-16-34003

VALVE ASS'Y,P.P.C.

SN: 53001-55000

1шт.

Выбрано товаров: 29