Запчасти Komatsu WA380-3 ПОЛ (ЗАДН. КОНСОЛЬН. БЛОК)(№-) КАБИНА ОПЕРАТОРА И СИСТЕМА УПРАВЛЕНИЯ

Схема запчастей Komatsu WA380-3 - ПОЛ (ЗАДН. КОНСОЛЬН. БЛОК)(№-) КАБИНА ОПЕРАТОРА И СИСТЕМА УПРАВЛЕНИЯ
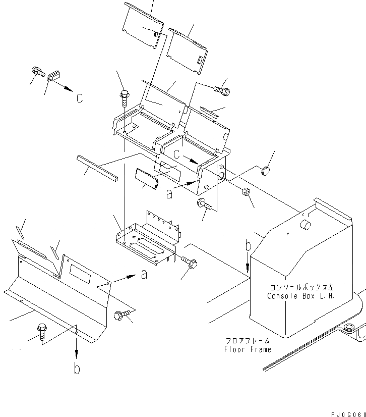
1
2
3
4
5
6
7
8
9
10
11
12
13
14
15
16
17
17
18
18
FIT
1:1
100%

Артикул

Название

Примечание

Количество

1

421-54-22731

BOX,REAR CONSOLE

SN: 54101-UP

1шт.

1

421-54-22760

HINGE (WELDED)

SN: 54101-UP

1шт.

2

421-54-22480

SEAL

SN: 54101-UP

1шт.

3

421-07-28261

INSULATOR

SN: 54101-UP

1шт.

4

421-09-21370

CATCH

SN: 54101-UP

1шт.

5

01023-70316

SCREW

SN: 54101-UP

2шт.

6

01580-10302

NUT

SN: 54101-UP

2шт.

7

421-09-21260

SCREW

SN: 54101-UP

1шт.

8

421-54-22750

HANDLE

SN: 54101-UP

1шт.

9

418-54-22180

INSULATOR

SN: 54101-UP

1шт.

10

09415-02512

CAP

SN: 54101-UP

1шт.

11

424-09-12610

COVER

SN: 54101-UP

1шт.

12

01435-00825

BOLT

SN: 54101-UP

2шт.

13

01435-00812

BOLT

SN: 54101-UP

3шт.

14

01435-00814

BOLT

SN: 54101-UP

2шт.

15

421-54-22650

BRACKET

SN: 54101-UP

1шт.

16

421-54-22740

COVER

SN: 54101-UP

1шт.

16

421-09-21360

HINGE (WELDED)

SN: 54101-UP

1шт.

17

418-54-22190

CUSHION

SN: 54101-UP

2шт.

18

01435-00616

BOLT

SN: 54101-UP

5шт.

Выбрано товаров: 20