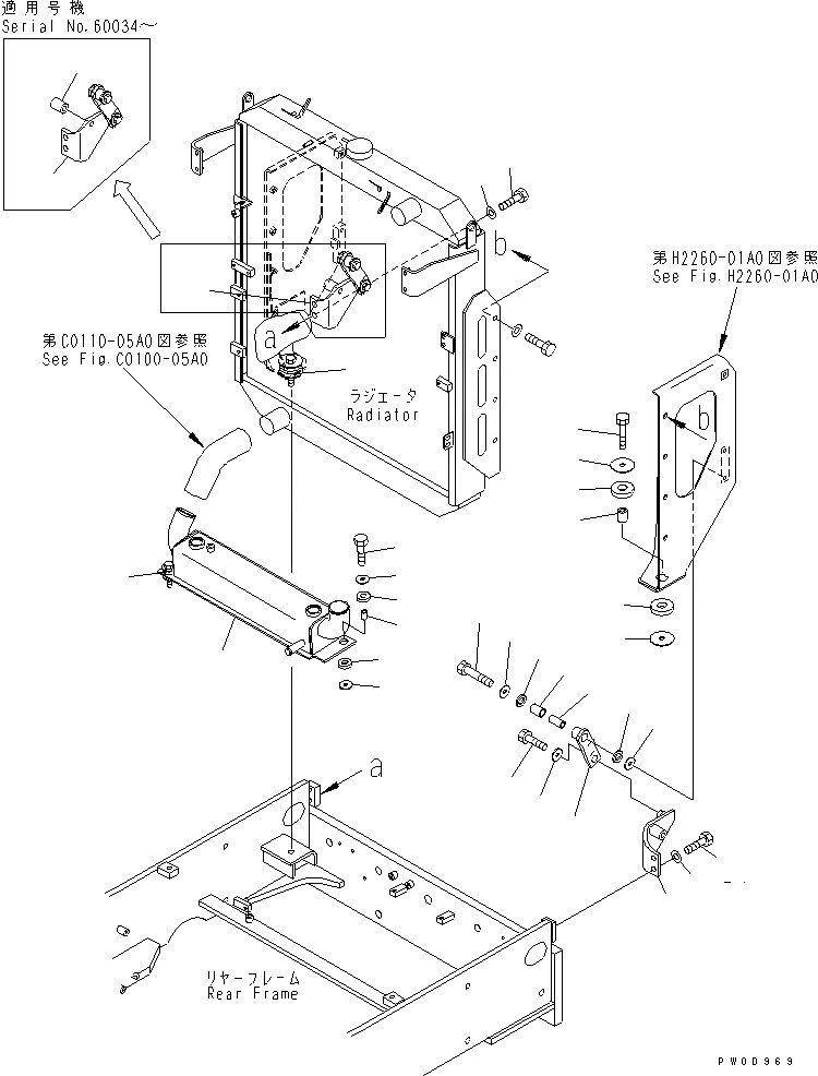
Запчасти Komatsu WA380-5-SN РАДИАТОР (ГИДРОТРАНСФОРМАТОР ОХЛАДИТЕЛЬ) СИСТЕМА ОХЛАЖДЕНИЯ

Схема запчастей Komatsu WA380-5-SN - РАДИАТОР (ГИДРОТРАНСФОРМАТОР ОХЛАДИТЕЛЬ) СИСТЕМА ОХЛАЖДЕНИЯ
1
2
2
3
4
5
5
6
7
8
8
9
9
9
10
11
12
13
13
14
15
16
16
17
18
19
19
19A
20
21
21
22
22
FIT
1:1
100%

Артикул

Название

Примечание

Количество

1

423-16-31161

COOLER

SN: 60001-UP

1шт.

2

419-43-17930

CUSHION

SN: 60001-UP

2шт.

3

415-64-13130

CUSHION

SN: 60001-UP

2шт.

4

417-54-13470

SPACER

SN: 60001-UP

2шт.

5

419-43-17920

WASHER

SN: 60001-UP

4шт.

6

01010-81245

BOLT

SN: 60001-UP

2шт.

7

01010-81470

BOLT

SN: 60001-UP

2шт.

8

421-03-31271

WASHER

SN: 60001-UP

4шт.

9

421-03-31260

CUSHION

SN: 60001-UP

4шт.

10

421-03-31281

SPACER

SN: 60001-UP

2шт.

11

424-03-31361

STAY

SN: 60001-UP

2шт.

12

01010-D1270

BOLT

SN: 60001-UP

2шт.

13

416-03-11260

CUSHION

SN: 60001-UP

4шт.

14

421-03-31421

SPACER

SN: 60001-UP

2шт.

15

421-03-31431

CUSHION

SN: 60001-UP

2шт.

16

421-03-31590

WASHER

SN: 60001-UP

4шт.

17

01010-D1220

BOLT

SN: 60001-UP

2шт.

18

421-03-31590

WASHER

SN: 60001-UP

2шт.

19

423-54-31813

BRACKET,R.H.

SN: 60034-UP

1шт.

|19

423-54-31812

BRACKET,R.H.

SN: 60001-60033

1шт.

19A

423-54-31830

COLLAR

SN: 60034-UP

1шт.

20

423-54-31822

BRACKET,L.H.

SN: 60001-UP

1шт.

21

01010-81435

BOLT

SN: 60001-UP

4шт.

22

01643-31445

WASHER

SN: 60001-UP

4шт.

Выбрано товаров: 24