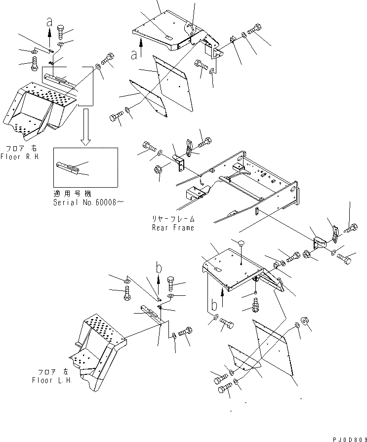
Запчасти Komatsu WA380-5-SN ЗАДН. КРЫЛО ЧАСТИ КОРПУСА

Схема запчастей Komatsu WA380-5-SN - ЗАДН. КРЫЛО ЧАСТИ КОРПУСА
1
2
3
4
5
5
6
7
8
8
8
9
9
9
10
10
11
11
12
13
14
15
15
16
16
17
17
18
18
19
19
20
20
21
21
22
22
23
23
23A
23B
24
24
25
25
26
26
27
27
28
28
28
28
29
29
29
29
30
31
32
33
34
34
35
36
FIT
1:1
100%

Артикул

Название

Примечание

Количество

1

423-54-34131

FENDER,REAR

SN: 60001-UP

1шт.

2

419-06-11150

GRIP (WELDED)

SN: 60001-UP

1шт.

3

423-54-34141

FENDER,REAR

SN: 60001-UP

1шт.

4

419-06-11150

GRIP (WELDED)

SN: 60001-UP

1шт.

5

423-54-34220

SHEET

SN: 60001-UP

2шт.

6

423-54-34280

PLATE,L.H.

SN: 60001-UP

1шт.

7

423-54-34270

PLATE,R.H.

SN: 60001-UP

1шт.

8

01010-D1025

BOLT

SN: 60001-UP

8шт.

9

01643-71032

WASHER

SN: 60001-UP

8шт.

10

01010-D1230

BOLT

SN: 60001-UP

12шт.

11

01643-71232

WASHER

SN: 60001-UP

12шт.

12

421-54-22990

PLUG

SN: 60001-UP

4шт.

13

421-54-34452

BRACKET,L.H.

SN: 60001-UP

1шт.

14

421-54-34462

BRACKET,R.H.

SN: 60001-UP

1шт.

15

01010-D1225

BOLT

SN: 60001-UP

4шт.

16

421-03-31590

WASHER

SN: 60001-UP

4шт.

17

421-54-34720

CATCH ASS'Y

SN: 60001-UP

2шт.

18

01010-D0825

BOLT

SN: 60001-UP

4шт.

19

01584-30806

NUT

SN: 60001-UP

4шт.

20

421-54-34710

HOOK

SN: 60001-UP

2шт.

21

01010-D0825

BOLT

SN: 60001-UP

4шт.

22

421-54-34740

BRACKET

SN: 60008-UP

1шт.

|22

421-54-34740

BRACKET

SN: 60001-60007

2шт.

23

421-54-21790

CUSHION

SN: 60001-UP

1шт.

23A

423-54-34330

BRACKET

SN: 60008-UP

1шт.

23B

421-54-21790

CUSHION

SN: 60008-UP

1шт.

24

01010-D1225

BOLT

SN: 60008-UP

5шт.

|24

01010-D1225

BOLT

SN: 60001-60007

6шт.

25

01643-71232

WASHER

SN: 60008-UP

5шт.

|25

01643-71232

WASHER

SN: 60001-60007

6шт.

26

566-54-23460

DOVE TAIL

SN: 60001-UP

2шт.

27

566-54-23470

DOVE TAIL

SN: 60001-UP

2шт.

28

01010-D0616

BOLT

SN: 60001-UP

8шт.

29

01643-70623

WASHER

SN: 60001-UP

8шт.

30

01643-70823

WASHER

SN: 60001-UP

4шт.

31

01643-70823

WASHER

SN: 60001-UP

4шт.

32

417-926-2280

STOPPER

SN: 60001-UP

2шт.

33

01023-70430

SCREW

SN: 60001-UP

2шт.

34

09805-C0880

PLATE¤ SAFETY

SN: 60001-UP

2шт.

35

421-54-34550

WASHER

SN: 60001-UP

2шт.

36

01584-31008

NUT

SN: 60001-UP

2шт.

Выбрано товаров: 41