Запчасти Komatsu WA380-6 FIREЗАЩИТА NET(№-) ЧАСТИ КОРПУСА

Схема запчастей Komatsu WA380-6 - FIREЗАЩИТА NET(№-) ЧАСТИ КОРПУСА
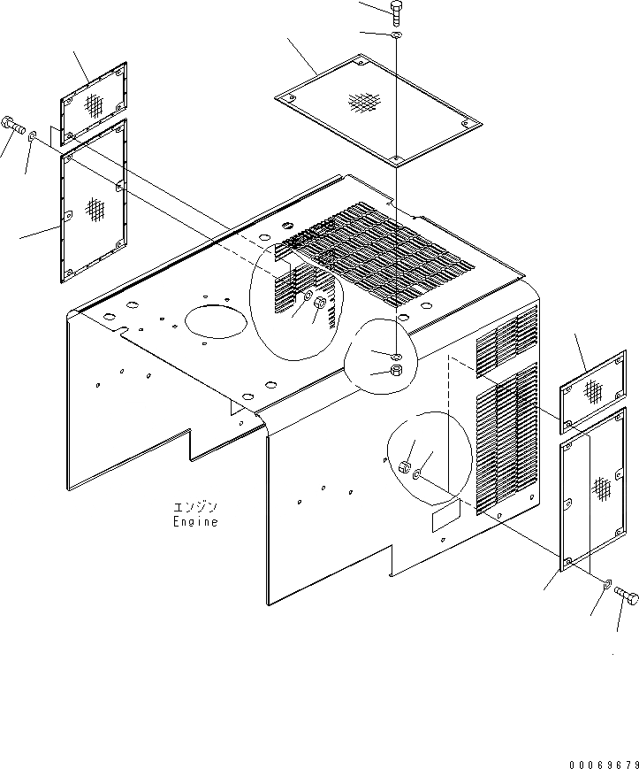
1
2
2
3
3
4
4
4
5
5
5
6
6
6
7
7
7
FIT
1:1
100%

Артикул

Название

Примечание

Количество

1

423-54-38110

NET

SN: 65001-UP

1шт.

2

423-54-38120

NET

SN: 65001-UP

2шт.

3

423-54-38130

NET

SN: 65001-UP

2шт.

4

01010-81025

BOLT

SN: 65001-UP

24шт.

5

01643-31032

WASHER

SN: 65001-UP

24шт.

6

130-43-64260

COLLAR

SN: 65001-UP

24шт.

7

01580-11008

NUT

SN: 65001-UP

24шт.

Выбрано товаров: 7