Запчасти Komatsu WA380-7 E-A КОРПУС АККУМУЛЯТОРА КАБЕЛЬS ЭЛЕКТРИКА

Схема запчастей Komatsu WA380-7 - E-A КОРПУС АККУМУЛЯТОРА КАБЕЛЬS ЭЛЕКТРИКА
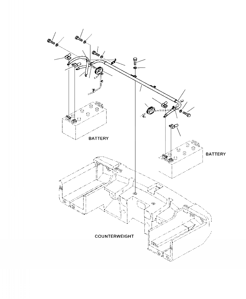
1
2
3
2
4
5
6
7
8
9
10
11
12
13
14
15
16
15
16
17
18
17
18
FIT
1:1
100%

Артикул

Название

Примечание

Количество

1

08028-GE200

CABLE, BATTERY TO BATTERY

1шт.

2

14X-06-12280

COVER

2шт.

3

423-06-52450

PIPE

1шт.

4

01010-D1020

BOLT

2шт.

5

01643-71032

WASHER

2шт.

6

423-06-52550

CABLE

1шт.

7

14X-06-12270

COVER

1шт.

8

423-06-58450

BRACKET

1шт.

9

01010-81020

BOLT

2шт.

10

01643-31032

WASHER

2шт.

11

04434-52312

CLIP

1шт.

12

01010-81020

BOLT

1шт.

13

01643-31032

WASHER

1шт.

14

14X-06-12290

COVER

1шт.

15

419-09-11450

GROMMET

2шт.

16

04434-52312

CLIP

2шт.

17

01010-81020

BOLT

2шт.

18

01643-31032

WASHER

2шт.

Выбрано товаров: 18