Запчасти Komatsu WA380Z-6 КАБИНА И ОСНОВН. КОНСТРУКЦИЯ ГРУППА, ДВЕРЬ КРЕПЛЕНИЕ (№9-) КАБИНА И ОСНОВН. КОНСТРУКЦИЯ ГРУППА, MONOCOQUE ТИП, С КОНДИЦИОНЕРОМ, УДЛИНН. ВПУСК ВОЗДУХА, ПРЕФИЛЬТР МАСЛ. BATH ТИП

Схема запчастей Komatsu WA380Z-6 - КАБИНА И ОСНОВН. КОНСТРУКЦИЯ ГРУППА, ДВЕРЬ КРЕПЛЕНИЕ (№9-) КАБИНА И ОСНОВН. КОНСТРУКЦИЯ ГРУППА, MONOCOQUE ТИП, С КОНДИЦИОНЕРОМ, УДЛИНН. ВПУСК ВОЗДУХА, ПРЕФИЛЬТР МАСЛ. BATH ТИП
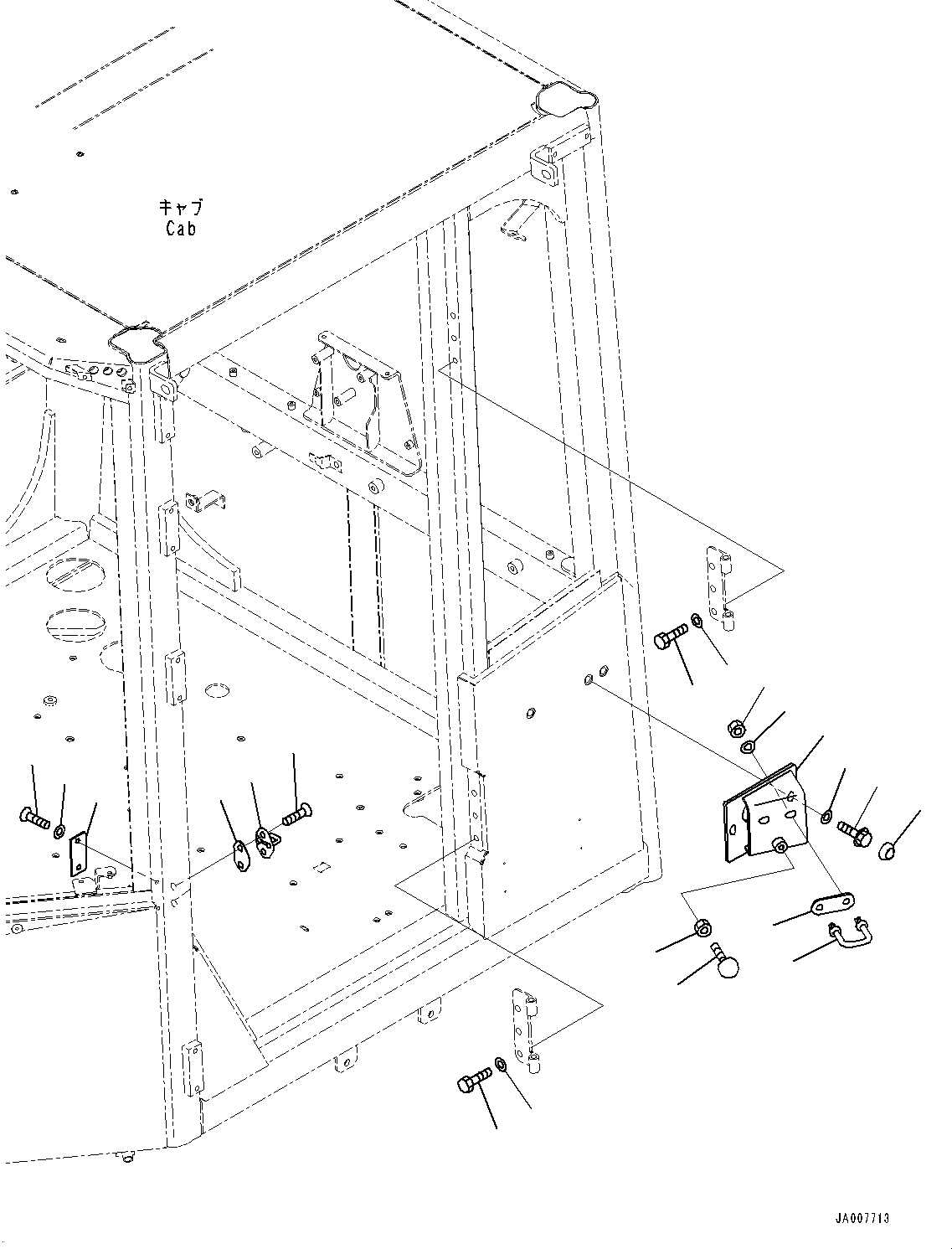
15
17
16
13
12
14
2
1
2
1
5
4
6
9
11
3
7
8
10
11
FIT
1:1
100%

Артикул

Название

Примечание

Количество

1

01010-81025

Bolt

SN: 66943-UP

6шт.

2

01643-31032

Washer

SN: 66943-UP

6шт.

3

424-02-41180

Bracket

SN: 66943-UP

1шт.

4

01435-01025

Bolt

SN: 66943-UP

2шт.

5

01643-31032

Washer

SN: 66943-UP

2шт.

6

363-54-31450

Cap

SN: 66943-UP

2шт.

7

20Y-54-35710

Plate

SN: 66943-UP

1шт.

8

20Y-54-35961

Striker

SN: 66943-UP

1шт.

9

01643-31032

Washer

SN: 66943-UP

2шт.

10

20T-54-75290

Stopper

SN: 66943-UP

1шт.

11

01580-11008

Nut

SN: 66943-UP

3шт.

12

20Y-53-11810

Striker

SN: 66943-UP

1шт.

13

20Y-54-35480

Shim, T=1.6mm

SN: 66943-UP

1шт.

14

01240-01020

Screw, Hexagon Socket Head

SN: 66943-UP

2шт.

15

421-926-4690

Plate

SN: 66943-UP

1шт.

16

01225-70616

Screw, Philips Head

SN: 66943-UP

2шт.

17

23S-55-51970

Washer

SN: 66943-UP

2шт.

Выбрано товаров: 17