Запчасти Komatsu WA430-6 РАДИАТОР (ТРУБЫ И КОНДЕНСАТОР)(№-) СИСТЕМА ОХЛАЖДЕНИЯ

Схема запчастей Komatsu WA430-6 - РАДИАТОР (ТРУБЫ И КОНДЕНСАТОР)(№-) СИСТЕМА ОХЛАЖДЕНИЯ
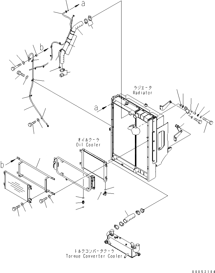
1
2
3
4
5
6
7
7
8
9
9
10
11
12
12
13
14
15
15
16
16
17
18
19
20
21
22
23
24
25
26
26
26
26
26
27
27
28
28
29
30
31
32
FIT
1:1
100%

Артикул

Название

Примечание

Количество

1

56E-07-21132

CONDENSER ASS'Y

SN: 65001-@

1шт.

2

01010-80820

BOLT

SN: 65001-@

4шт.

3

01643-30823

WASHER

SN: 65001-@

4шт.

4

423-S62-4260

BRACKET

SN: 65001-65440

1шт.

5

01010-81025

BOLT

SN: 65001-65440

3шт.

6

01643-31032

WASHER

SN: 65001-65440

3шт.

7

424-03-41231

BRACKET

SN: 65001-@

2шт.

8

01010-D1270

BOLT

SN: 65001-@

2шт.

9

416-03-11260

CUSHION

SN: 65001-@

4шт.

10

421-03-31421

SPACER

SN: 65001-@

2шт.

11

421-03-31431

CUSHION

SN: 65001-@

2шт.

12

421-03-31590

WASHER

SN: 65001-@

4шт.

13

424-03-41512

HOSE

SN: 65001-@

1шт.

14

424-03-41521

HOSE

SN: 65001-@

1шт.

15

07289-00070

CLAMP

SN: 65001-@

4шт.

16

424-03-41551

HOSE

SN: 65001-@

1шт.

17

134-03-61410

BAND

SN: 65001-@

3шт.

18

11Y-09-11140

CLIP

SN: 65001-@

1шт.

19

424-03-41540

TUBE

SN: 65001-@

1шт.

20

02782-10628

ELBOW

SN: 65001-@

1шт.

21

07002-12434

O-RING

SN: 65001-@

1шт.

22

07002-12434

O-RING

SN: 65001-@

1шт.

23

02781-00522

UNION

SN: 65001-@

1шт.

24

02896-11015

O-RING

SN: 65001-@

1шт.

25

02896-11018

O-RING

SN: 65001-@

1шт.

26

04434-51510

CLIP

SN: 65001-65440

5шт.

27

01010-81020

BOLT

SN: 65001-65440

4шт.

28

01643-31032

WASHER

SN: 65001-65440

4шт.

29

01010-81050

BOLT

SN: 65001-65440

1шт.

30

01643-31032

WASHER

SN: 65001-65440

1шт.

31

175-79-83760

SPACER

SN: 65001-65440

1шт.

32

424-04-41350

HOSE

SN: 65001-65440

1шт.

Выбрано товаров: 32