Запчасти Komatsu WA450-3A РАДИАТОР (КОМПОНЕНТЫ РАДИАТОРА) СИСТЕМА ОХЛАЖДЕНИЯ

Схема запчастей Komatsu WA450-3A - РАДИАТОР (КОМПОНЕНТЫ РАДИАТОРА) СИСТЕМА ОХЛАЖДЕНИЯ
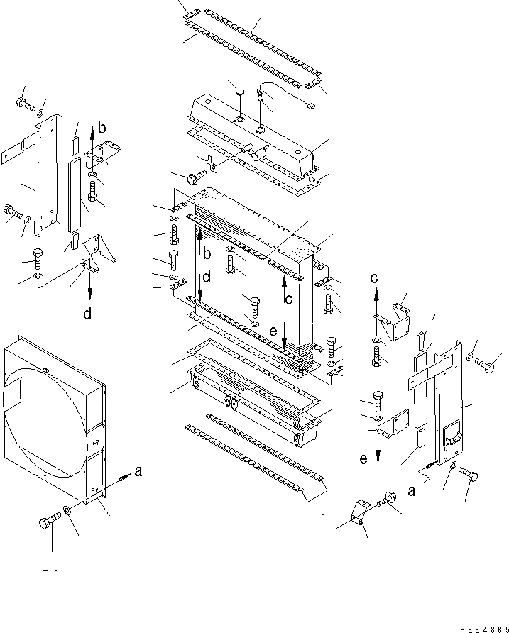
1
2
3
4
5
6
6
6
6
7
7
8
8
9
9
9
10
10
10
10
11
11
12
12
12
12
13
13
14
15
15
15
15
15
15
15
15
15
15
16
16
16
16
16
16
16
16
16
16
17
17
17
17
18
18
18
18
19
20
21
22
23
24
25
26
27
FIT
1:1
100%

Артикул

Название

Примечание

Количество

|1

421-03-21103

RADIATOR ASS'Y

SN: 54001-UP

1шт.

|1

421-03-21102

RADIATOR ASS'Y

SN: 53001-53999

1шт.

|1

421-03-21712

RADIATOR CORE ASS'Y

SN: 53001-UP

1шт.

1

421-03-21410

CORE ASS'Y

SN: 53001-UP

1шт.

2

421-03-21420

TANK ASS'Y,UPPER

SN: 53001-UP

1шт.

3

421-03-21430

TANK ASS'Y,LOWER

SN: 53001-UP

1шт.

4

421-03-21440

SUPPORT

SN: 53001-UP

1шт.

5

421-03-21450

SUPPORT

SN: 53001-UP

1шт.

6

421-03-21460

PLATE

SN: 53001-UP

4шт.

7

421-03-21470

GASKET

SN: 53001-UP

2шт.

8

421-03-21480

PLATE

SN: 53001-UP

4шт.

9

421-03-21490

PLATE

SN: 53001-UP

4шт.

10

421-03-21510

PLATE

SN: 53001-UP

4шт.

11

428-03-15230

PACKING

SN: 54001-UP

2шт.

|11

421-03-21520

PACKING

SN: 53001-53999

2шт.

12

421-03-21530

PLATE

SN: 53001-UP

4шт.

13

421-03-21540

PLATE

SN: 53001-UP

2шт.

14

421-03-21210

CAP ASS'Y

SN: 54001-UP

1шт.

|14

23S-03-11150

CAP ASS'Y

SN: 53001-53999

1шт.

15

01010-81030

BOLT

SN: 53001-UP

84шт.

16

01602-21030

WASHER,SPRING

SN: 53001-UP

84шт.

17

01010-81225

BOLT

SN: 54001-UP

16шт.

|17

01010-51225

BOLT

SN: 53001-53999

16шт.

18

01643-31232

WASHER

SN: 53001-UP

16шт.

19

421-03-21771

SHROUD

SN: 53001-UP

1шт.

20

01010-81020

BOLT

SN: 54001-UP

8шт.

|20

01010-51020

BOLT

SN: 53001-53999

8шт.

21

01643-31032

WASHER

SN: 53001-UP

8шт.

22

421-03-23390

PLATE

SN: 53001-UP

2шт.

23

01435-01016

BOLT

SN: 53001-UP

4шт.

24

7861-92-4500

SENSOR

SN: 53001-UP

1шт.

25

07002-23634

O-RING

SN: 53001-UP

1шт.

26

08053-01510

CLIP

SN: 53001-UP

1шт.

27

01435-01016

BOLT

SN: 53001-UP

1шт.

Выбрано товаров: 34