Запчасти Komatsu WA450-5L КОНДИЦ. ВОЗДУХА (КРЕПЛЕНИЕ КОНДЕНСАТОРА) КАБИНА ОПЕРАТОРА И СИСТЕМА УПРАВЛЕНИЯ

Схема запчастей Komatsu WA450-5L - КОНДИЦ. ВОЗДУХА (КРЕПЛЕНИЕ КОНДЕНСАТОРА) КАБИНА ОПЕРАТОРА И СИСТЕМА УПРАВЛЕНИЯ
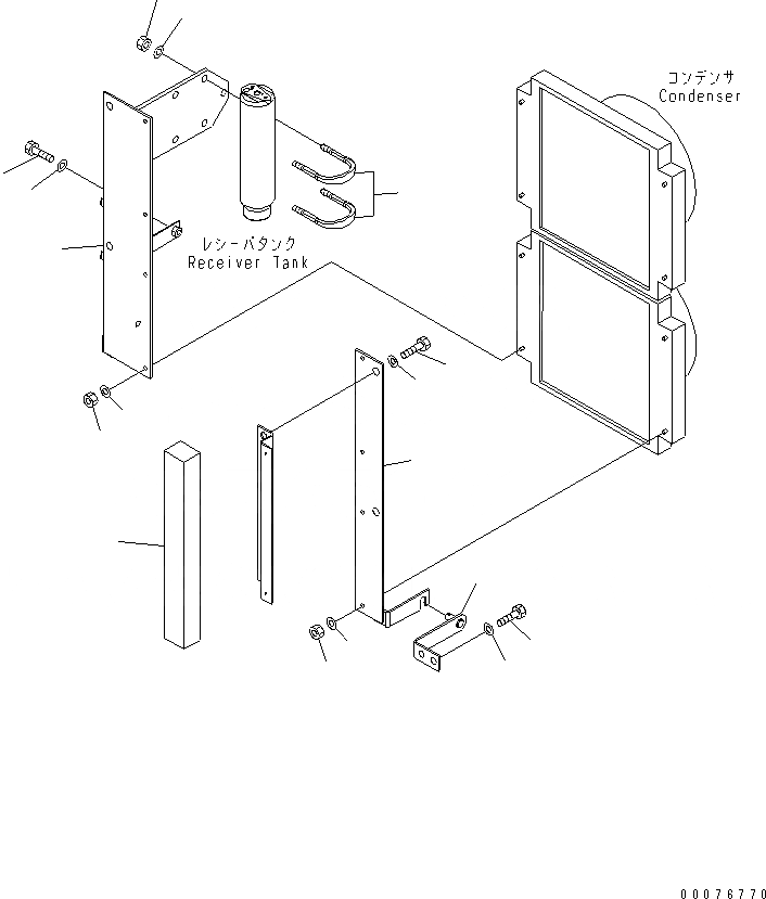
1
2
3
4
5
6
7
8
9
10
10
11
11
12
13
14
15
FIT
1:1
100%

Артикул

Название

Примечание

Количество

1

421-07-31121

BRACKET

SN: A36001-UP

1шт.

2

421-07-31131

BRACKET

SN: A36001-UP

1шт.

3

01010-81225

BOLT

SN: A36001-UP

4шт.

4

01643-31232

WASHER

SN: A36001-UP

4шт.

5

01010-81235

BOLT

SN: A36001-UP

1шт.

6

01643-51232

WASHER

SN: A36001-UP

1шт.

7

07283-36155

CLIP

SN: A36001-UP

2шт.

8

01643-31032

WASHER

SN: A36001-UP

4шт.

9

01597-01009

NUT

SN: A36001-UP

4шт.

10

01580-10605

NUT

SN: A36001-UP

8шт.

11

01643-30623

WASHER

SN: A36001-UP

16шт.

12

421-07-31650

PLATE

SN: A36001-UP

1шт.

13

01010-81020

BOLT

SN: A36001-UP

2шт.

14

01643-31032

WASHER

SN: A36001-UP

2шт.

15

421-07-31110

SHEET

SN: A36001-UP

1шт.

Выбрано товаров: 15