Запчасти Komatsu WA470-6 LC РАДИАТОР (САПУН ДЛЯ ТОПЛИВН. БАК.) C СИСТЕМА ОХЛАЖДЕНИЯ

Схема запчастей Komatsu WA470-6 LC - РАДИАТОР (САПУН ДЛЯ ТОПЛИВН. БАК.) C СИСТЕМА ОХЛАЖДЕНИЯ
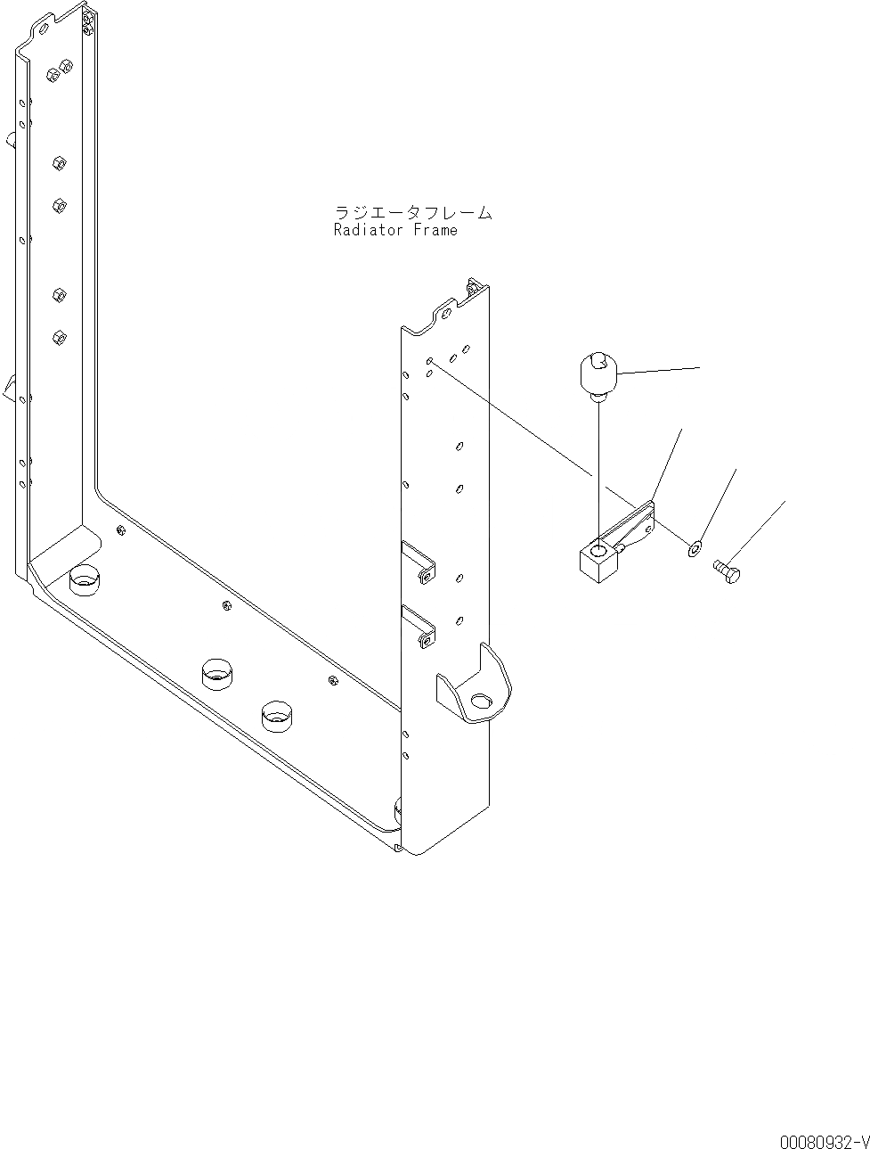
1
2
3
4
FIT
1:1
100%

Артикул

Название

Примечание

Количество

1

195-60-51560

BREATHER

SN: H50880-UP

1шт.

|$2

421-60-35170

ELEMENT

SN: H50880-UP

1шт.

|$3

421-60-35180

COVER

SN: H50880-UP

1шт.

|$4

421-60-35190

NUT

SN: H50880-UP

1шт.

2

421-04-41260

BLOCK

SN: H50880-UP

1шт.

3

01010-81025

BOLT

SN: H50880-UP

2шт.

4

01643-31032

WASHER

SN: H50880-UP

2шт.

Выбрано товаров: 7