Запчасти Komatsu WA470-6 LC УДАЛЕНН. ПОДСВЕТКА СТУПЕНЕЙ E ЭЛЕКТРИКА

Схема запчастей Komatsu WA470-6 LC - УДАЛЕНН. ПОДСВЕТКА СТУПЕНЕЙ E ЭЛЕКТРИКА
10
7
9
8
6
4
5
1
3
2
FIT
1:1
100%

Артикул

Название

Примечание

Количество

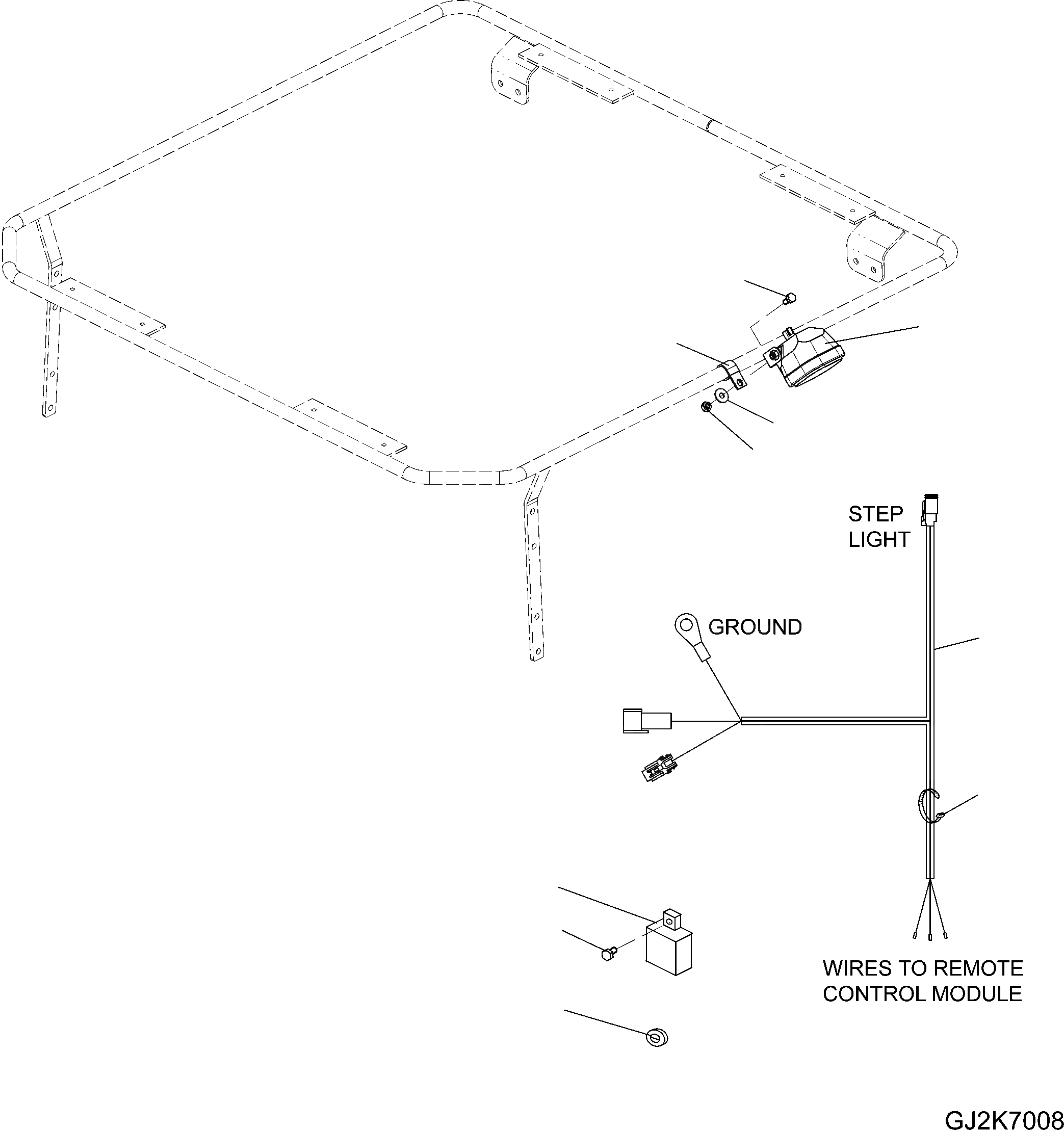
1

421-06-H1720

REMOTE CONTROL MODULE

SN: H50880-UP

1шт.

2

421-06-H1730

REMOTE CONTROL

SN: H50880-UP

1шт.

3

01370-00516

SCREW

SN: H50880-UP

2шт.

4

423-06-H2760

WIRING HARNESS, STEP LIGHT

SN: H50880-UP

1шт.

5

08034-20519

BAND

SN: H50880-UP

5шт.

6

20E-06-31270

WORK LAMP

SN: H50880-UP

1шт.

7

01010-81020

BOLT

SN: H50880-UP

1шт.

8

01643-31032

WASHER

SN: H50880-UP

1шт.

9

01580-01008

NUT

SN: H50880-UP

1шт.

10

04434-52711

CLIP

SN: H50880-UP

1шт.

Выбрано товаров: 10