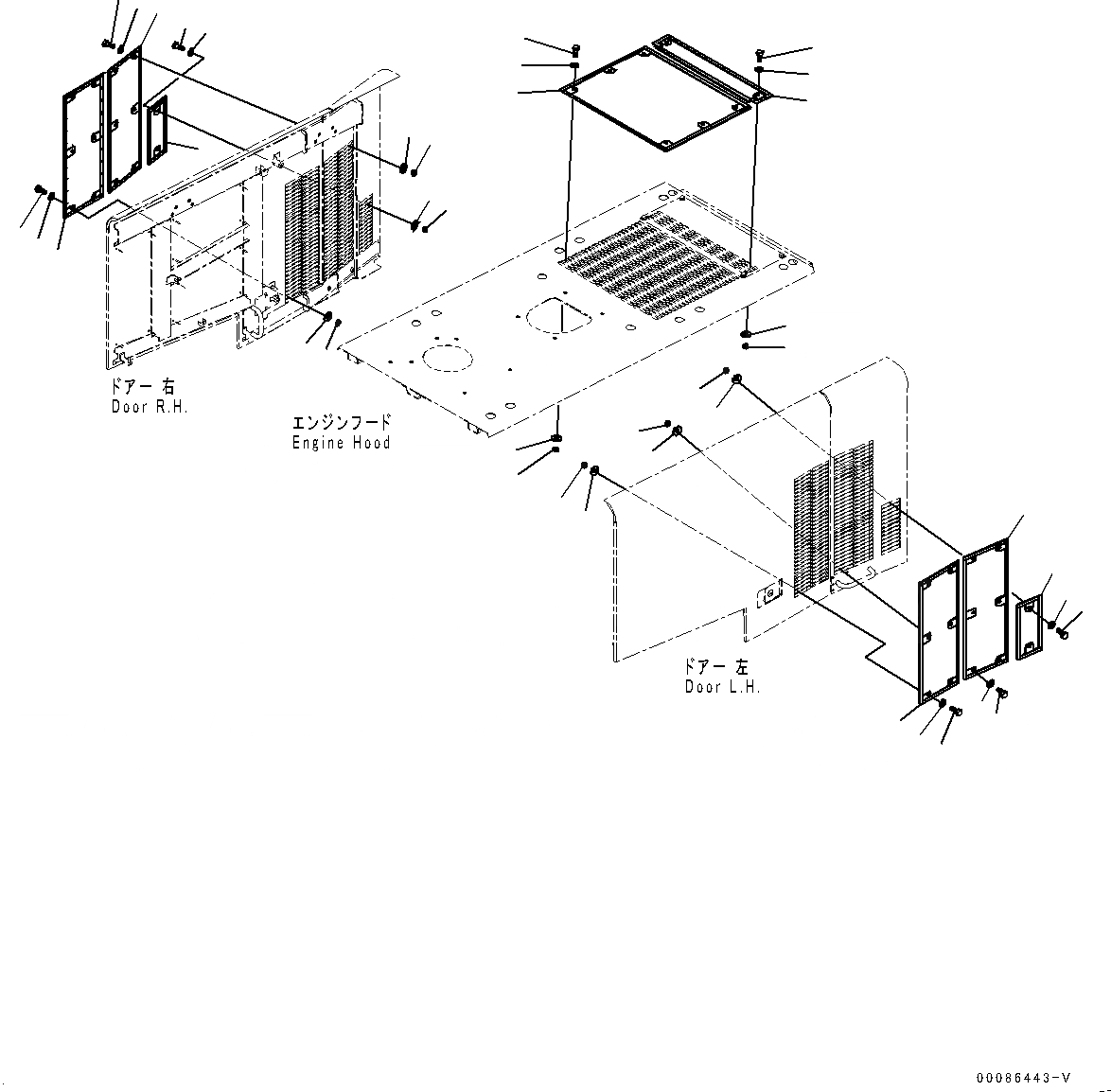
Запчасти Komatsu WA470-6 FIRE ЗАЩИТА NET (№9-) FIRE ЗАЩИТА NET

Схема запчастей Komatsu WA470-6 - FIRE ЗАЩИТА NET (№9-) FIRE ЗАЩИТА NET
1
2
2
3
4
2
2
3
5
5
5
5
5
5
5
5
7
7
7
7
7
7
7
8
8
8
8
8
8
8
7
8
6
6
6
6
6
6
6
6
FIT
1:1
100%

Артикул

Название

Примечание

Количество

1

421-54-48110

Net

SN: 90216-UP

1шт.

2

421-54-48120

Net

SN: 90216-UP

4шт.

3

421-54-48130

Net

SN: 90216-UP

2шт.

4

421-54-48140

Net

SN: 90216-UP

1шт.

5

01010-81025

Bolt

SN: 90216-UP

36шт.

6

01643-31032

Washer

SN: 90216-UP

36шт.

7

130-43-64260

Collar

SN: 90216-UP

36шт.

8

01580-11008

Nut

SN: 90216-UP

36шт.

Выбрано товаров: 8