Запчасти Komatsu WA470-6 CENTRAL СМАЗКА (PROGRESSIVE ФИДЕР) (СТРЕЛА) J ОСНОВНАЯ РАМА И ЕЕ ЧАСТИ

Схема запчастей Komatsu WA470-6 - CENTRAL СМАЗКА (PROGRESSIVE ФИДЕР) (СТРЕЛА) J ОСНОВНАЯ РАМА И ЕЕ ЧАСТИ
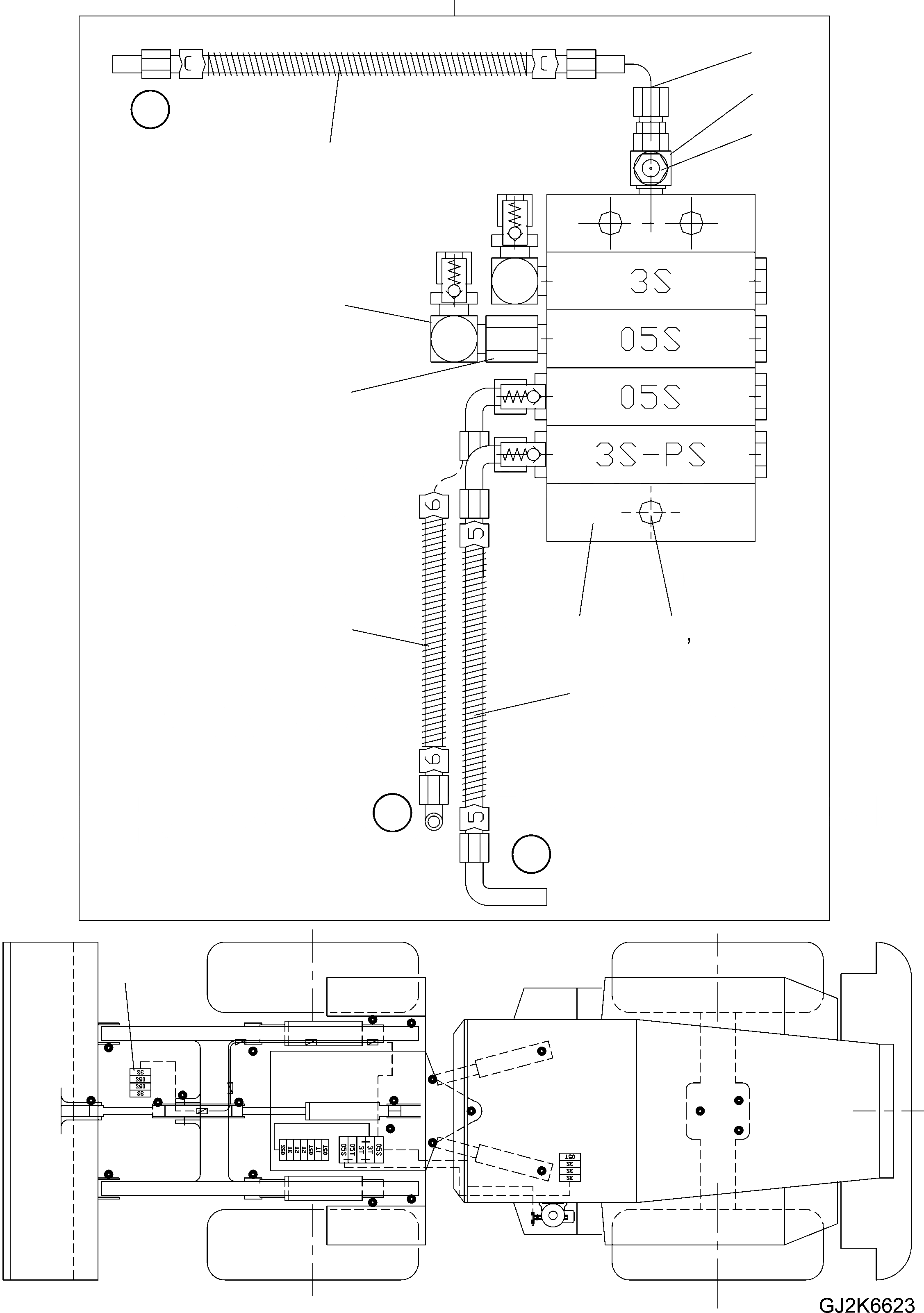
1
6
7
8
3
9
10
4
2
11
12
5
1
005
005
006
006
C
C
FIT
1:1
100%

Артикул

Название

Примечание

Количество

1

0

PROGRESSIVE FEEDER

SN: H50051-UP

1шт.

2

423-09-H3740

DISTRIBUTOR

SN: H50051-UP

1шт.

3

424-09-H1810

HOSE

SN: H50051-UP

1шт.

4

424-09-H1820

HOSE

SN: H50051-UP

1шт.

5

421-09-H4580

HOSE

SN: H50051-UP

1шт.

6

423-00-H1900

UNION

SN: H50051-UP

1шт.

7

425-09-H0720

ELBOW

SN: H50051-UP

1шт.

8

421-09-H3870

LUBRICATION NIPPLE

SN: H50051-UP

1шт.

9

425-09-H0240

ELBOW

SN: H50051-UP

2шт.

10

423-00-H2070

UNION

SN: H50051-UP

1шт.

11

01252-70640

SCREW

SN: H50051-UP

3шт.

12

419-09-H2860

SCREW LOCKING DEVICE

SN: H50051-UP

3шт.

005

LUB. POINT 5

BUCKET PIN CENTER

-1шт.

006

LUB. POINT 6

BELLCRANK BOTTOM

-1шт.

C

LUB. POINT C

-1шт.

Выбрано товаров: 15