Запчасти Komatsu WA470-7 K- КАБИНА ROPS И ОСНОВН. КОНСТРУКЦИЯ ГРУППА ДВЕРЬ, ЛЕВ. (/) OPERATORXD S ОБСТАНОВКА И СИСТЕМА УПРАВЛЕНИЯ

Схема запчастей Komatsu WA470-7 - K- КАБИНА ROPS И ОСНОВН. КОНСТРУКЦИЯ ГРУППА ДВЕРЬ, ЛЕВ. (/) OPERATORXD S ОБСТАНОВКА И СИСТЕМА УПРАВЛЕНИЯ
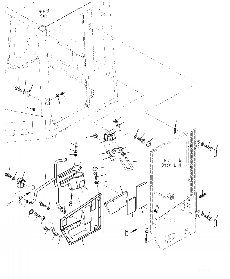
1
32
33
31
28
30
29
40
25
41
37
36
24
38
23
43
27
13
35
34
14
40
15
43
12
39
42
21
6
22
16
10
4
5
44
1
11
17
18
3
19
24
23
20
26
46
6
45
4
5
8
7
9
2
FIT
1:1
100%

Артикул

Название

Примечание

Количество

1

423-925-5471

GROMMET

1шт.

2

423-925-5421

COVER

1шт.

3

421-56-21460

FASTENER

4шт.

4

01240-00616

SCREW

5шт.

5

423-925-5851

WASHER

5шт.

6

423-925-5860

CAP

5шт.

7

205-54-72220

HANDLE

1шт.

8

417-926-3250

SCREW

2шт.

9

01643-51032

WASHER

2шт.

10

423-925-5461

COVER

1шт.

11

423-925-5491

COVER

1шт.

12

423-925-5950

SEAL

1шт.

13

01245-00620

SCREW

1шт.

14

56D-54-35310

COLLAR

1шт.

15

56D-54-35320

WASHER

1шт.

16

423-925-5484

HANDRAIL

1шт.

17

01010-D1025

BOLT

2шт.

18

01643-71032

WASHER

2шт.

19

01643-51032

WASHER

1шт.

20

423-925-5751

BRACKET

1шт.

21

01023-20816

SCREW

1шт.

22

423-925-5890

SPACER

1шт.

23

01010-80825

BOLT

6шт.

24

01643-30823

WASHER

6шт.

25

423-925-5330

SHIM, T=1.6 MM

2шт.

26

423-925-5170

COVER

1шт.

27

423-925-5180

COVER

1шт.

28

423-925-5611

STRIKER

1шт.

29

423-925-5621

BRACKET

1шт.

30

423-926-5840

PLATE

1шт.

31

423-925-5760

PLATE

1шт.

32

01225-70616

SCREW, PHILIPS HEAD

2шт.

33

23S-55-51970

WASHER

2шт.

34

423-925-5651

BRACKET

1шт.

35

419-925-5140

PLATE

1шт.

36

01435-01025

BOLT

2шт.

37

01643-31032

WASHER

2шт.

38

363-54-31450

CAP, BOLT

2шт.

39

423-925-5661

STRIKER

1шт.

40

01580-10806

NUT

4шт.

41

01643-30823

WASHER

2шт.

42

20Y-54-11611

STOPPER

1шт.

43

01580-11008

NUT

2шт.

44

421-926-5710

SHEET

1шт.

45

421-926-5720

SHEET

1шт.

46

421-926-5730

SHEET

1шт.

Выбрано товаров: 46