Запчасти Komatsu WA470-DZ-3 РУЛЕВОЕ КОЛЕСО И РУЛЕВ. КОЛОНКА(СУППОРТ) [РАМА И ЧАСТИ КОРПУСА]

Схема запчастей Komatsu WA470-DZ-3 - РУЛЕВОЕ КОЛЕСО И РУЛЕВ. КОЛОНКА(СУППОРТ) [РАМА И ЧАСТИ КОРПУСА]
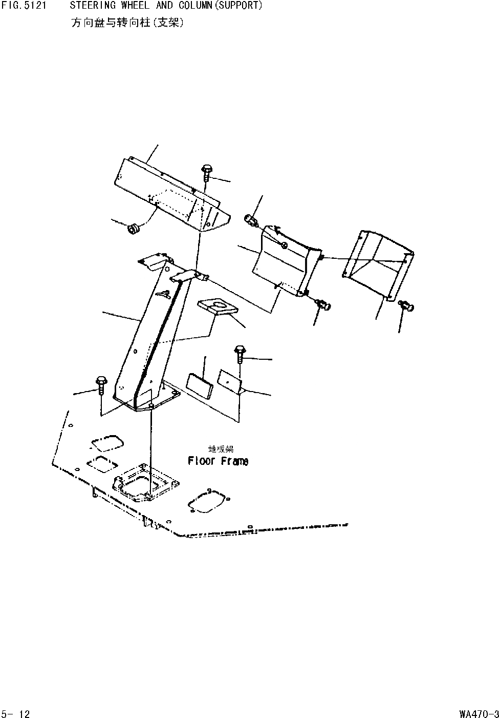
11
13
12
10
6
7
8
5
4
6
3
1
9
2
FIT
1:1
100%

Артикул

Название

Примечание

Количество

1

419-54-22160

SUPPORT

Field_2: 20001-

1шт.

2

01435-01230

BOLT

Field_2: 20001-

4шт.

3

423-54-22140

SUPPORT

Field_2: 20001-

1шт.

4

01435-00816

BOLT

Field_2: 20001-

4шт.

5

419-54-22172

COVER

Field_2: 20001-

1шт.

6

421-09-21410

SCREW

Field_2: 20001-

2шт.

7

419-54-22181

COVER

Field_2: 20001-

1шт.

8

421-09-21410

SCREW

Field_2: 20001-

4шт.

9

417-54-13520

CAP

Field_2: 20001-

1шт.

10

417-54-22360

PLATE

Field_2: 20001-

1шт.

11

417-54-22420

SEAL

Field_2: 20001-

1шт.

12

01435-00610

BOLT

Field_2: 20001-

2шт.

13

417-54-22370

SEAL

Field_2: 20001-

1шт.

Выбрано товаров: 13