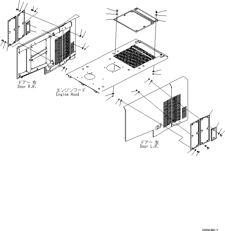
Запчасти Komatsu WA480-6 FIREЗАЩИТА NET(№8-) ЧАСТИ КОРПУСА

Схема запчастей Komatsu WA480-6 - FIREЗАЩИТА NET(№8-) ЧАСТИ КОРПУСА
1
2
2
2
2
3
3
4
5
5
5
5
5
5
5
5
6
6
6
6
6
6
6
6
7
7
7
7
7
7
7
7
8
8
8
8
8
8
8
8
FIT
1:1
100%

Артикул

Название

Примечание

Количество

1

421-54-48110

NET

SN: 85001-UP

1шт.

2

421-54-48120

NET

SN: 85001-UP

4шт.

3

421-54-48130

NET

SN: 85001-UP

2шт.

4

421-54-48140

NET

SN: 85001-UP

1шт.

5

01010-81025

BOLT

SN: 85001-UP

36шт.

6

01643-31032

WASHER

SN: 85001-UP

36шт.

7

130-43-64260

COLLAR

SN: 85001-UP

36шт.

8

01580-11008

NUT

SN: 85001-UP

36шт.

Выбрано товаров: 8