Запчасти Komatsu WA480-6 УДАЛЕННАЯ СМАЗКА (ЗАДН. МОСТ СУППОРТ)(№8-) ОСНОВНАЯ РАМА И ЕЕ ЧАСТИ

Схема запчастей Komatsu WA480-6 - УДАЛЕННАЯ СМАЗКА (ЗАДН. МОСТ СУППОРТ)(№8-) ОСНОВНАЯ РАМА И ЕЕ ЧАСТИ
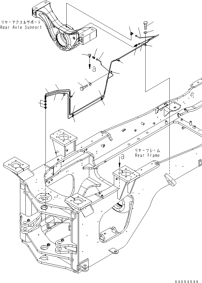
1
2
2
3
3
3
3
3
4
4
5
5
6
7
8
8
9
9
9
9
10
11
12
13
FIT
1:1
100%

Артикул

Название

Примечание

Количество

1

423-09-12110

CONNECTOR

SN: 85001-UP

3шт.

2

421-46-46140

TUBE

SN: 85001-UP

1шт.

3

04435-50610

CLIP

SN: 85001-UP

5шт.

4

421-09-12540

ELBOW

SN: 85001-UP

2шт.

5

421-46-46150

TUBE

SN: 85001-UP

1шт.

6

01010-81020

BOLT

SN: 85001-UP

5шт.

7

01643-31032

WASHER

SN: 85001-UP

5шт.

8

421-46-46270

TUBE

SN: 90001-UP

1шт.

8

421-46-46130

TUBE

SN: 85001-90000

1шт.

9

04434-50610

CLIP

SN: 85001-UP

4шт.

10

205-62-53391

ELBOW

SN: 85001-UP

1шт.

11

423-09-12110

CONNECTOR

SN: 85001-UP

1шт.

12

01010-81020

BOLT

SN: 85001-UP

2шт.

13

01643-31032

WASHER

SN: 85001-UP

2шт.

Выбрано товаров: 0